在中国,有2.8亿年轻人在为未来打拼。而他们中的大多数人,却难以拥有一个真正具有居住品质的家。2014年年初,网红马佳佳受邀前往万科演讲,抛出“九零后压根就不买房”言论曾经红极一时。然而刚刚过去四年,就已经时过境迁;当最早的一批90后身上“新新人类”的标签开始剥落,在猛然发现自己已经年满28周岁的现
在中国,有2.8亿年轻人在为未来打拼。
而他们中的大多数人,却难以拥有一个真正具有居住品质的家。
2014年年初,网红马佳佳受邀前往万科演讲,抛出“九零后压根就不买房”言论曾经红极一时。
然而刚刚过去四年,就已经时过境迁;当最早的一批90后身上“新新人类”的标签开始剥落,在猛然发现自己已经年满28周岁的现实后,第一批90后无奈地发现自己居然成了当年被自己嗤之以鼻的“中年人”。

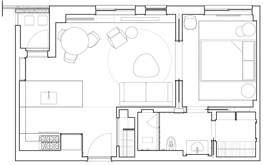
功能小户型和二手房成为年轻人最多的选择
曾说打死不买房,终究还是太年轻。除了要与恨天高的房价下相妥协,不合理的空间布局、还有有限的预算又是新一轮的现实。多数年轻人坚持多年换来的并不是理想中的诗和远方,而是一地鸡毛的装修琐碎。
是时候放出这句忍了很久的话了:
我们的房子也许可以越来越小,可生活空间不是!
“年轻人的家”应该什么样?也许下面这位男神会给你答案。

青山周平
现在提到这个名字
大概没有人不认识的
因为在节目《梦想改造家》中
爆改北京胡同里“最小学区房”的出色表现
让他在中国迅速走红
关键是颜值和才华集于一身
着实圈了不少粉丝
2005年,青山周平来到中国,作为一名旅居中国13年的建筑师,经历了房地产的增长十年,也目睹了无数北上广年轻人的居住现状,2015年,参加东方卫视《梦想改造家》的经历让他一夜成名,也让定位于建筑师的他,开始认真思考起了城市的居住空间与人之间的关系,年轻人们,怎样才能住的更好?
结合自己多年的建筑设计案例,青山周平认为,高房价与小户型已经成为现实,不过年轻人的房子虽然越来越小,但“家”依然可以很大。合理运用设计的力量,就一定可以居住的更好。
青山周平的“战绩”
1、北京胡同“小”房“大”改造
东方卫视的《梦想改造家》中,原型为北京胡同里住着胖大婶一家三代五口人的一套35平方米的老房子,青山周平用了4个月的时间从设计到施工完成了“魔法”般的改造。一楼有夫妇二人的卧室、客厅、厨房、浴室、更衣室、厕所,二楼有女儿女婿的卧室、外孙女的房间,甚至是茶室。
他本人说,设计之前在胖大婶家实地住了一天一夜。用亲身体验来寻找灵感,了解这一家人的生活习惯和喜好,设计出更舒服的“家”。这一改造让他一夜之间登上微博热搜榜,迅速的“火”了起来。

构思模型


改造前

改造后
2、小户改造大难题——空间不足7平米

改造前的院内小户

改造前临街小户
在青山周平一系列“化腐朽为神奇”的改造下,胖大婶家的改造工程顺利完工了,但留给他改造的还有邻居家两间加起来不足7平米的房间。
根据小户业主的要求,在3.1平米的房里要有厨房和客厅,必要时还需容纳邻居好友八人前来玩耍的空间,在另一间3.7平米的房里则要拥有卫生间、卧室、育婴房和小卖铺。

改造后的厨房
面积小,功能却要齐全,面对如此棘手的问题,青山周平只好从直和水平方向上的可变性、伸缩性来解决问题。
3.1平米的厨房,通过一个可拉伸的桌子来满足了2人、4人、8人的不同情况的用餐需求,8人用餐时南向的墙面就会完全打开,桌子实质上拉伸到了院子里,同时可以将房顶上的可滑动格栅拉出来,具有遮阳的功能。
3.1平米的厨房满足2——8人的用餐需求


3.7平米的小居室,下面的部分借用的是中国古代科举考场“号舍”座位的想法,设计师将木板放在五种不同高度实现茶室和卧室的切换,来实现小空间的可变性;上部为了适应将来可能的各种需求利用不锈钢线和电机设计的升降床板又是现代的技术,是中国古代智慧与现代的一个结合。

临街小户改变前后变化


临街小户改造后的房门




经验与启迪
青山周平的每一次改造,都会为大家带来惊喜。其实《梦想改造家》里面的一些小经验,也值得我们借鉴。如:
01、阳光入室
小技巧:反射和漫反射
在有一期《零采光的家》中,委托方的家在整幢楼里一楼的中间,采光极差,即便是白天,房间里也很少有阳光。设计师考虑到这一点,在不影响邻居的情况下,在墙面上安装镜子反射光线,将光线反射进巷道,然后将将走廊的墙也刷成白色,利用光线的漫反射,增强屋内的采光。
改造前

改造后

除了《零采光的家》外,节目里还有很多采光有问题的案例,均利用光线的反射和漫反射,提高空间的采光。
改造前
什么,装修还用自己的钱?!齐家装修分期,超低年利率3.55%起,最高可贷100万。立即申请享受优惠
2015年11月14日 星期六 十月 初三
【乙未年 丁亥月 甲午日 】
结果已同步发送到您手机,齐家网,帮助用户轻松实现装修,感谢您的使用。
白羊座 更适合于“现代简约” 装修风格
可参考如下更多“现代简约”风格装修案例图 更多
沪ICP备13002314号-1 沪B2-20170342 组织机构代码证:66439109—1
中国互联网协会信用评价中心网信认证 网信编码:1664391091 举报电话:400-660-7700
齐家网 版权所有Copyright © 2005- www.jia.com All rights reserved