业主曾经留学欧洲,对那里的建筑风格有很深的感情,回国成家立业之后,希望自己的家带有欧式风情,但平时处于繁忙的工作中,特别渴望慢下来的简单生活,传统欧式风格中繁复的装饰,容易产生视觉疲劳,经过商榷之后,决定以简欧风格为概念,打造一个华丽又温馨的家居环境。这是一个170平方米的复式楼,格局方正,采光充足
业主曾经留学欧洲,对那里的建筑风格有很深的感情,回国成家立业之后,希望自己的家带有欧式风情,但平时处于繁忙的工作中,特别渴望慢下来的简单生活,传统欧式风格中繁复的装饰,容易产生视觉疲劳,经过商榷之后,决定以简欧风格为概念,打造一个华丽又温馨的家居环境。

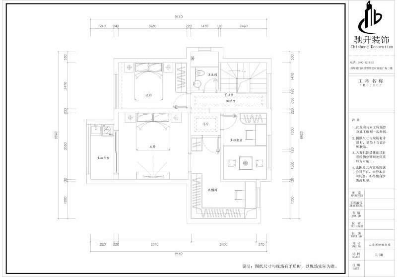
这是一个170平方米的复式楼,格局方正,采光充足,只是楼梯的位置卡在中间,让空间看起来不够宽敞,业主对这点也不太满意,希望在后期改进,可以扩充厨房的面积

这是一个170平方米的复式楼,格局方正,采光充足,只是楼梯的位置卡在中间,让空间看起来不够宽敞,业主对这点也不太满意,希望在后期改进,可以在二楼开辟出一个多功能室

将楼梯移到靠墙的位置,明显扩充了厨房和餐厅的面积,让整个房子看起来更加宽敞,将客厅和餐厅以及厨房、次卧安排在楼下

根据业主的需求,二楼部分规划出一个衣帽间和一个多功能室,二楼的主卧对面是多功能室,也可以作为一个小的会客厅,楼上楼下各有一个卫生间。
欧式吊顶达到了优雅细腻的效果,又不会显得过分隆重,整体以白色系为主,吸收了传统欧式风格的色彩和材料,摒弃了过于繁复的肌理和装饰,沙发背景墙的花纹壁纸内敛典雅,大理石纹理电视机背景墙凸显简洁美感,在软装方面可以选择欧式风格的沙发和窗帘,营造出贵族般的居家氛围,处处洋溢着浪漫的情调
比起普通的吊顶,圆形吊顶不仅看起来特色感十足,而且是一种团圆的象征,具有美好的寓意,周围采用石膏线细细勾勒,加上欧式吊灯点缀,气势感十足,结合周围的小射灯装饰,看起来美轮美奂。一侧的整体式酒柜体现了强大的收纳功能,整个空间以白色系为主,看起来更加整洁明亮。

为了让狭长的门厅显得更加宽敞明亮,采用浅色调设计,一侧墙面做成整体式收纳柜,中间挖空部分作为装饰台,另一侧墙面挂上装饰画,让整个空间更有艺术气息。拼贴地砖设计感十足,米色与黑色混搭出华贵的感觉。
什么,装修还用自己的钱?!齐家装修分期,超低年利率3.55%起,最高可贷100万。立即申请享受优惠
2015年11月14日 星期六 十月 初三
【乙未年 丁亥月 甲午日 】
结果已同步发送到您手机,齐家网,帮助用户轻松实现装修,感谢您的使用。
白羊座 更适合于“现代简约” 装修风格
可参考如下更多“现代简约”风格装修案例图 更多