齐家网 > 资讯 > 装修头条 > 装修达人 > 正文

羡煞旁人的温馨 | 北欧简约0

2018-10-10 15:55:02

北欧风格的家居设计通常以简洁著称于世,崇尚自然,力求清新是北欧风格设计中的关键。这所传统的北欧风格的住宅,将简单的机构与舒适功能相互结合,使室内装修富有灵魂,清新自然又精美。房屋的原始结构是一栋两层砖房,整个住宅被夹在一排建筑中,位于百老汇市场的后面。因此,整个内部空间让人感觉幽闭而局促,几乎没有自

北欧风格的家居设计通常以简洁著称于世,崇尚自然,力求清新是北欧风格设计中的关键。这所传统的北欧风格的住宅,将简单的机构与舒适功能相互结合,使室内装修富有灵魂,清新自然又精美。

微信图片_20180903105910.jpg

房屋的原始结构是一栋两层砖房,整个住宅被夹在一排建筑中,位于百老汇市场的后面。因此,整个内部空间让人感觉幽闭而局促,几乎没有自然光射入房间。 为了将这个小小的住宅打造成为一个更大、更实用的现代住宅,我们将运用创造性的方式对空间进行改造。

客厅

微信图片_201809031059101.jpg

办公区

微信图片_201809031059104.jpg 微信图片_201809031059105.jpg

家庭办公区域采用折叠墙进行遮挡,这样也能作为第三个卧室使用

微信图片_201809031059106.jpg

我们重新设计了楼层间的关系,以此来增加底层的层高,整个建筑分为三层,这样的设计促进了不同区域之间的互动交流。更新后的家庭办公区将与起居区相通,开放式厨房在起居和用餐空间的上方。家庭办公区采用定制的折叠墙进行遮挡,这样也能作为第三个卧室使用。

厨房

微信图片_201809031059107.jpg

厨房中都使用类似的材料,来增强了空间的连续感

微信图片_201809031059107.jpg 微信图片_201809031059108.jpg

设计师在整个房屋改造中都使用类似的材料,从而增强空间的连续感,而不是单个房间的感觉。同时,在楼室内加入更大的木窗和楼梯间的屋顶灯,让房屋的中部和后部的厨房都拥有更多采光,营造出一个宁静而明亮的室内空间。此外,设计师对居家极为重要的储存空间也进行了重新设计,将它们最大化地隐藏在房屋的各个角落中。

楼梯间

微信图片_2018090310591010.jpg

储藏空间被最大化地隐藏在房屋的各个角落

微信图片_2018090310591011.jpg

与楼梯间相结合的储藏空间

微信图片_2018090310591012.jpg

卫生间

微信图片_2018090310591013.jpg 微信图片_2018090310591014.jpg

改造轴测图

微信图片_2018090310591015.jpg

建筑轴测图

微信图片_2018090310591016.jpg

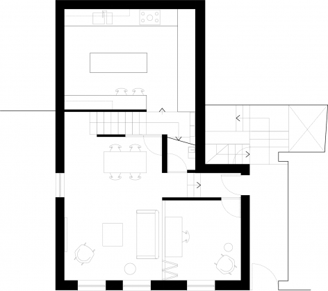
一二层平面图

微信图片_2018090310591017.jpg

三层平面图

微信图片_2018090310591018.jpg

与伙伴筑起广厦,有温馨的笑语,沙石世界,造就温馨的家。没有过度的装饰和造作,是一种深藏在骨子里的简约生活态度,在打造简约家居的同时,又不失品味和风范。

 

什么,装修还用自己的钱?!齐家装修分期,超低年利率3.55%起,最高可贷100万。立即申请享受优惠

已有0条评论

根据该面积估算半包报价为 :

65610.1

因选择的材料品牌、施工工艺及实际工程量的不同,报价会有差异,具体报价还以装修公司上门实地量房后计算的报价为准,立即精准报价

报名获取更多优惠

活动亮点

免费热线:400-660-7700

我已阅读并且同意齐家网的 用户协议

立即报名

您好,90天内您装修开工的最佳吉日是:

2015年11月14日 星期六 十月 初三

【乙未年 丁亥月 甲午日 】

若当天您无法开工,2015年11月20日 星期五 十月初九【乙未年 丁亥月 庚子日】也是您装修开工的吉日。

结果已同步发送到您手机,齐家网,帮助用户轻松实现装修,感谢您的使用。

星座匹配装修风格:

白羊座 更适合于“现代简约” 装修风格

喜欢出风头的羊儿不太希望自己的家居风格与他人一致。后现代风格强调建筑及室内装潢应具有历史的延续性,但又不拘泥于传统的逻辑思维方式,使得整个家居环境时髦又不失品味。白羊比较喜欢在家中接待友人,这种装修风格能让白羊在接待友人时面子十足。

可参考如下更多“现代简约”风格装修案例图 更多

恭喜您,报名成功!

沪ICP备13002314号-1 沪B2-20170342 组织机构代码证:66439109—1

中国互联网协会信用评价中心网信认证 网信编码:1664391091 举报电话:400-660-7700

齐家网 版权所有Copyright © 2005- www.jia.com All rights reserved