齐家网 > 资讯 > 装修头条 > 装修达人 > 正文

89平小户型简约风,两房改三房还有更多的储物空间!0

2019-03-19 07:38:12

(公众号:jia-etf)分享儿童房装修设计,装修效果图,装修资讯,创意家居!心之所安,为爱齐家!福利——添加个人微信:qijiavr即可免费领取3D室内效果图,长按上图中的二维码识别即可添加!点击此处小程序,了解更多装修资讯今天分享的是一套建筑面积89平米的简约风小户型案例,房子原本的格局是二房

公众号:jia-etf)分享儿童房装修设计,装修效果图,装修资讯,创意家居!心之所安,为爱齐家!

福利——添加个人微信:qijiavr即可免费领取3D室内效果图,长按上图中的二维码识别即可添加!

今天分享的是一套建筑面积89平米的简约风小户型案例,房子原本的格局是二房,为了满足屋主一家人的使用需求,设计师把它改成了三房的格局,而且还做了很多的储物空间,让这个小窝变得更加宽敞实用和舒适。

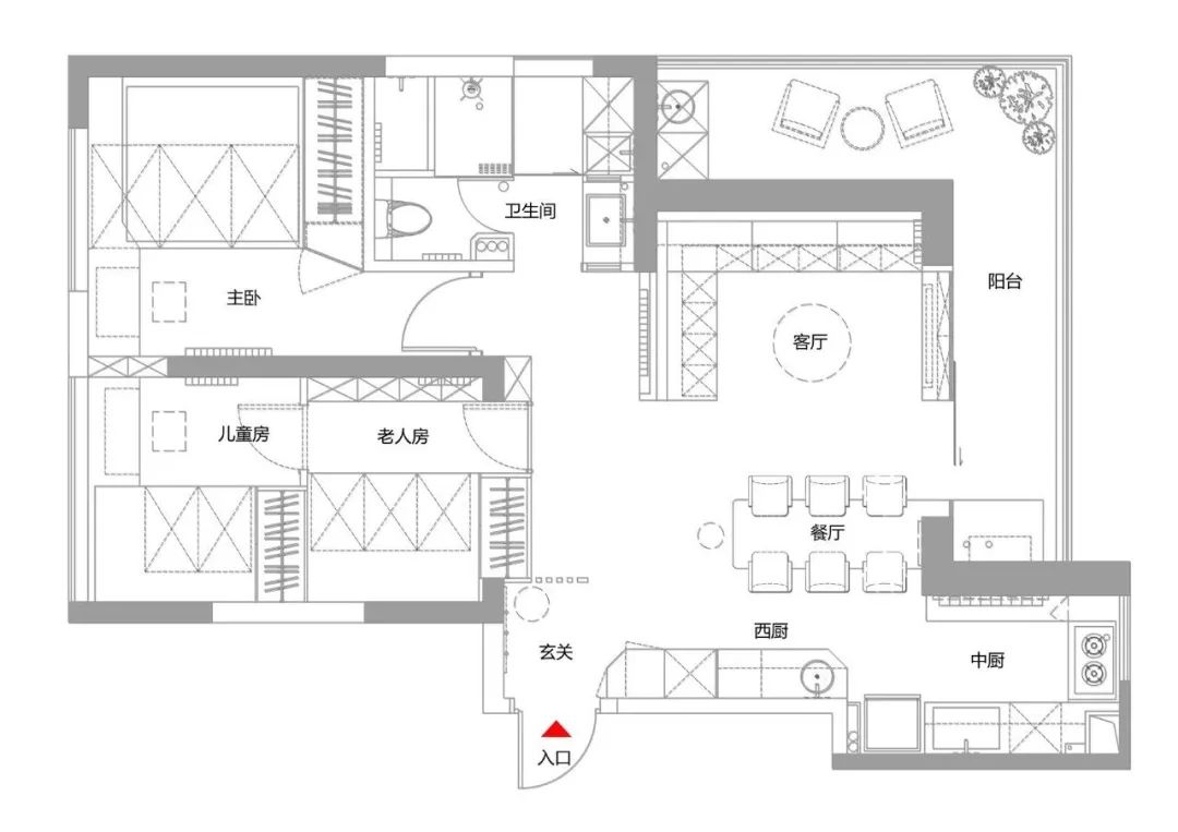
平面布置图

入户的玄关走廊对着卫生间,所以设计师加上了一个木栅栏隔断来进行遮掩。玄关的地面铺贴六边砖,和木地板拼接起来非常好看。

在玄关的另一侧是厨房和餐厅空间,玄关鞋柜和橱柜结合在一起。木质与大理石结合的餐桌和地面的双拼设计相互呼应。

厨房内部的空间还是比较宽敞的,L型的橱柜布局,淡青色的橱柜搭配灰色调六边砖和白色的墙砖,构造出一个清新文艺的烹饪空间。

客厅和餐厅之间没有做隔断,客厅的沙发用一个L型的卡座来代替,茶几被省略掉了。电视摆放在推拉门的前方,可转动角度的电视方便平时观看。

阳台是一个L型的空间,全包黑框玻璃的设计让阳台的光线变得更加充足。在阳台的角落里也做了储物柜,方便平时摆放一些零碎杂物和晾晒的衣架等。

主卧室被设计成了榻榻米床组合书桌柜的设计,在床尾抬高一部分的地方做书桌面,增强了可操作空间,也方便日常使用。

老人房和儿童房是连在一起的,老人房做在外面,榻榻米床和柜子之间作为通道,在柜子里还嵌入了电视,开放式的格子也方便老人平时拿取东西。

儿童房内部同样是榻榻米床组合衣柜和书桌的设计,衣柜底部还加上了藏光的设计,显得更为明亮。整个家就靠这些榻榻米床来扩容储物空间,布局也更加紧凑。

卫生间处做了双洗手台的设计,方便日常的使用,两者之间还加上了浴帘作为隔断,洗衣机也被嵌入在了洗手台下方,更为节约空间。

·END·

(我们致力于保护作者版权,部分作品来自互联网.无法核实真实出处,如涉及侵权,请直接联系小编删除.谢谢!)

加微信:qijiavr或扫描下方二维码,即可根据您家户型,0元定制720度3D全景家装效果图,还未装修,亲眼看见装修后的效果!!

你家装修需要花多少钱?点击“儿童房装修案例精选”马上就能算出来

 

什么,装修还用自己的钱?!齐家装修分期,超低年利率3.55%起,最高可贷100万。立即申请享受优惠

已有0条评论

根据该面积估算半包报价为 :

65610.1

因选择的材料品牌、施工工艺及实际工程量的不同,报价会有差异,具体报价还以装修公司上门实地量房后计算的报价为准,立即精准报价

报名获取更多优惠

活动亮点

免费热线:400-660-7700

我已阅读并且同意齐家网的 用户协议

立即报名

您好,90天内您装修开工的最佳吉日是:

2015年11月14日 星期六 十月 初三

【乙未年 丁亥月 甲午日 】

若当天您无法开工,2015年11月20日 星期五 十月初九【乙未年 丁亥月 庚子日】也是您装修开工的吉日。

结果已同步发送到您手机,齐家网,帮助用户轻松实现装修,感谢您的使用。

星座匹配装修风格:

白羊座 更适合于“现代简约” 装修风格

喜欢出风头的羊儿不太希望自己的家居风格与他人一致。后现代风格强调建筑及室内装潢应具有历史的延续性,但又不拘泥于传统的逻辑思维方式,使得整个家居环境时髦又不失品味。白羊比较喜欢在家中接待友人,这种装修风格能让白羊在接待友人时面子十足。

可参考如下更多“现代简约”风格装修案例图 更多

恭喜您,报名成功!