齐家网 > 资讯 > 装修头条 > 装修达人 > 正文

83平的简约风,两居改三居室,构造出一个紧凑而又实用的小窝0

2019-03-19 08:48:13

关注微信公众号:jia-fszx,每天和您分享软装搭配技巧、各种风格户型的装修案例、搭配设计知识等!今天分享的是一套建筑面积83平米的简约风小户型三居室案例,原本是二房的户型,设计师为了满足屋主一家的居住需求,把餐厅改成了卧室,客餐厅结合起来,构造出了这样一个紧凑而又实用的小窝。平面布置图,户型整

关注微信公众号:jia-fszx,每天和您分享软装搭配技巧、各种风格户型的装修案例、搭配设计知识等!

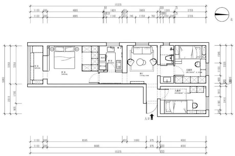
今天分享的是一套建筑面积83平米的简约风小户型三居室案例,原本是二房的户型,设计师为了满足屋主一家的居住需求,把餐厅改成了卧室,客餐厅结合起来,构造出了这样一个紧凑而又实用的小窝。

平面布置图,户型整体比较扁长,却也给人一种简单的感觉。

这套案例的户型是手枪型的,入户的玄关走廊比较窄,所以设计师选择了迷你的窄鞋柜,搭配上方的创意挂钩,也能满足日常的使用需求。

走过玄关之后就到了客厅空间,沙发背靠着窗户,两侧还做了置物架辅助收纳,在侧方的墙面做个创意的墙贴装饰,增加趣味性。

隐藏在沙发边上的小柜子其实就是餐厅的餐桌,可折叠的餐桌是很适合小户型的,把客餐厅放在同一个空间也更为紧凑实用。

通往厨房和主卧的走廊过道,墙面做了木质造型,餐椅也被挂在了墙上,充分的利用小户型的每一个空间。

主卧室和阳台连通了起来,做个半墙作为隔断。床头背景墙刷成了棕褐色,搭配深木色的床和床头柜、素雅的床品,显得端庄而又优雅舒适。

阳台的面积虽然不大,但设计师没少在收纳上花心思,靠窗的一排开放式地柜,侧方也做了储物柜,长木块搭配文化砖的设计让阳台更显自然、轻松。

女孩房的床和书桌齐高,利用床底的空间来做收纳,另一侧也做了到顶的衣柜。粉色调的女孩房给人一种浪漫、可爱的感觉。

男孩房的配色就会比较简约一些,以原木风为主搭配蓝色调的设计,同样把床给抬高,底部空间被充分利用起来做收纳。

卫生间的内部空间比较迷你,所以也没做干湿分离的设计,在角落里做个弧形的洗手台,马赛克瓷砖和六边仿古砖的结合,带来别样的美感。

·END·

(图片来源于网络,如有侵权请告知我们删除!)

加微信:qijia-am,或扫描下方二维码,即可根据您家户型,0元定制720度3D全景家装效果图,还未装修,亲眼看见装修后的效果!!

像这样装修需要花多少钱?点击“家居软装设计精选”马上就能算出来

 

什么,装修还用自己的钱?!齐家装修分期,超低年利率3.55%起,最高可贷100万。立即申请享受优惠

相关阅读

已有0条评论

根据该面积估算半包报价为 :

65610.1

因选择的材料品牌、施工工艺及实际工程量的不同,报价会有差异,具体报价还以装修公司上门实地量房后计算的报价为准,立即精准报价

报名获取更多优惠

活动亮点

免费热线:400-660-7700

我已阅读并且同意齐家网的 用户协议

立即报名

您好,90天内您装修开工的最佳吉日是:

2015年11月14日 星期六 十月 初三

【乙未年 丁亥月 甲午日 】

若当天您无法开工,2015年11月20日 星期五 十月初九【乙未年 丁亥月 庚子日】也是您装修开工的吉日。

结果已同步发送到您手机,齐家网,帮助用户轻松实现装修,感谢您的使用。

星座匹配装修风格:

白羊座 更适合于“现代简约” 装修风格

喜欢出风头的羊儿不太希望自己的家居风格与他人一致。后现代风格强调建筑及室内装潢应具有历史的延续性,但又不拘泥于传统的逻辑思维方式,使得整个家居环境时髦又不失品味。白羊比较喜欢在家中接待友人,这种装修风格能让白羊在接待友人时面子十足。

可参考如下更多“现代简约”风格装修案例图 更多

恭喜您,报名成功!