齐家网 > 资讯 > 装修头条 > 装修达人 > 正文

140平北欧风跃层三居室,顶层大露台让人羡慕!0

2019-03-22 01:58:08

(公众号:jia-etf)分享儿童房装修设计,装修效果图,装修资讯,创意家居!心之所安,为爱齐家!福利——添加个人微信:qijiavr即可免费领取3D室内效果图,长按上图中的二维码识别即可添加!点击此处小程序,了解更多装修资讯今天分享的是一套一楼建筑面积140平米的北欧风三居室案例,房子位于顶层,

公众号:jia-etf)分享儿童房装修设计,装修效果图,装修资讯,创意家居!心之所安,为爱齐家!

福利——添加个人微信:qijiavr即可免费领取3D室内效果图,长按上图中的二维码识别即可添加!

今天分享的是一套一楼建筑面积140平米的北欧风三居室案例,房子位于顶层,是个跃层的户型,二楼还有一个开放式的休闲区和大露台,让人羡慕不已。整个房子在硬装上非常简洁,设计师通过精致的软装、壁纸来打造这个舒适的家。

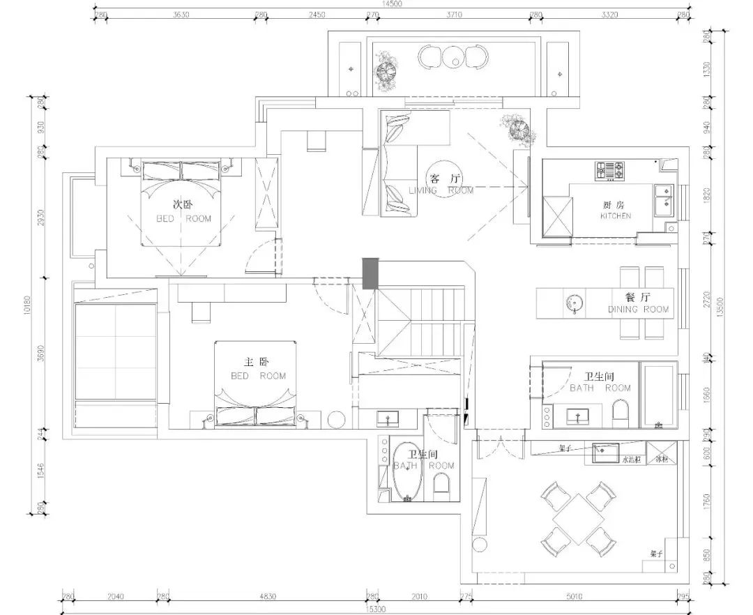
一层平面布置图

二层平面布置图

入户有个独立的小花园,走过玄关门厅之后就到了室内,利用楼梯底部的空间做了嵌入式的柜子,木质扶手加上黑色护栏显得格外精致。

在楼梯边上的就是餐厅空间,一个中央岛台和餐桌椅结合起来的餐厅,方便屋主把餐厅直接作为西厨使用。

餐厅的边上就是封闭式的中厨空间,蓝色的橱柜搭配白色的大理石墙砖和吊柜,U字型的橱柜布局也满足了厨房的收纳、使用需求。

在楼梯的另一侧是客厅空间,电视背景墙直接留白,高低不平的圆茶几搭配电视柜来满足客厅收纳需求。浅灰色的布艺沙发和蓝色、白色的条纹地毯结合起来,非常好看。

在客厅沙发背景墙的后方是一个小书房空间,墙面摆放一幅陶瓷盘的装饰画,靠着窗户做了L型的转角书桌,让可利用面积得以提升。

小编很喜欢这个主卧室的设计,床头背景墙上铺贴了浪漫的壁纸,整体以粉色系为主的设计,也让这个主卧显得精致而又优雅。

次卧的设计就会偏于素雅一些,灰色系的床搭配蓝色系的床品,墙面刷成了浅灰色,整体简洁的设计让整个卧室变得更加的沉稳。

二楼是一个开放式的休闲区,摆放沙发、茶几和书架,沙发背景墙上做了照片墙的设计,给这个休闲区增添一些艺术气息。

在休息区的外面就是大露台,露台上简单的摆放一些绿植,小编觉得再加上防晒、防雨的休闲桌椅就更好了,晒晒太阳、看看书都非常舒服。

(我们致力于保护作者版权,部分作品来自互联网.无法核实真实出处,如涉及侵权,请直接联系小编删除.谢谢!)

加微信:qijiavr或扫描下方二维码,即可根据您家户型,0元定制720度3D全景家装效果图,还未装修,亲眼看见装修后的效果!!

你家装修需要花多少钱?点击“儿童房装修案例精选”马上就能算出来

 

什么,装修还用自己的钱?!齐家装修分期,超低年利率3.55%起,最高可贷100万。立即申请享受优惠

已有0条评论

根据该面积估算半包报价为 :

65610.1

因选择的材料品牌、施工工艺及实际工程量的不同,报价会有差异,具体报价还以装修公司上门实地量房后计算的报价为准,立即精准报价

报名获取更多优惠

活动亮点

免费热线:400-660-7700

我已阅读并且同意齐家网的 用户协议

立即报名

您好,90天内您装修开工的最佳吉日是:

2015年11月14日 星期六 十月 初三

【乙未年 丁亥月 甲午日 】

若当天您无法开工,2015年11月20日 星期五 十月初九【乙未年 丁亥月 庚子日】也是您装修开工的吉日。

结果已同步发送到您手机,齐家网,帮助用户轻松实现装修,感谢您的使用。

星座匹配装修风格:

白羊座 更适合于“现代简约” 装修风格

喜欢出风头的羊儿不太希望自己的家居风格与他人一致。后现代风格强调建筑及室内装潢应具有历史的延续性,但又不拘泥于传统的逻辑思维方式,使得整个家居环境时髦又不失品味。白羊比较喜欢在家中接待友人,这种装修风格能让白羊在接待友人时面子十足。

可参考如下更多“现代简约”风格装修案例图 更多

恭喜您,报名成功!