齐家网 > 资讯 > 装修头条 > 装修达人 > 正文

北京东城老胡同改造的民宿︱全壹建筑设计0

2019-04-05 02:48:12

▲ 点击上方蓝字“民宿设计秀”,关注公众号回复数字“1”获取100套精品民宿设计案例图文 | 来源网络背景项目位于北京东城区西扬威胡同,院落格局方正,是一个标准四合院的倒座。屋主一家是本地居民民,三代人在院子里生活了四十多年,尤其对院子中央的大枣树感情深厚,对设计师的改造寄予厚望。改造的四合院位于

▲点击上方蓝字“民宿设计秀”,关注公众号

回复数字1获取100套精品民宿设计案例

图文 | 来源网络

背景

项目位于北京东城区西扬威胡同,院落格局方正,是一个标准四合院的倒座。屋主一家是本地居民民,三代人在院子里生活了四十多年,尤其对院子中央的大枣树感情深厚,对设计师的改造寄予厚望。

改造的四合院位于北京东城区

项目鸟瞰

构思

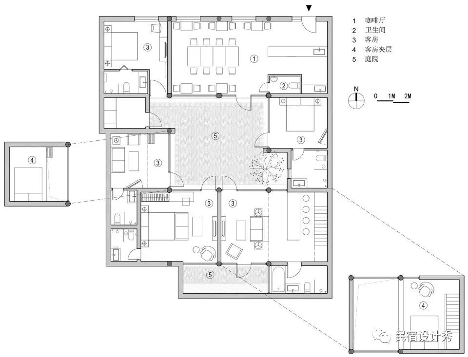
原有存在木结构遭腐蚀、强度破坏、空间压抑灰暗等明显不足,院内更是私搭乱建出各种房间,蚕食了本来开敞的院子。院子新的功能使命是一个小型精品民宿,设计者首先希望恢复四合院的精髓,创造一个豁然开朗的院子,把枣树、阳光以及使用者的各种活动装进去。两个 L 型房间的布局帮助设计师实现了这一空间,沿街的北房与东房是一个公共客厅连带两个客房,南房与西房被分成三间不同大小的客房。并以京剧特有的角色生旦净末丑来命名这 5 间不同性格的房间。

民宿中的大厅

建造

在改造过程中设计者保留了老屋结构性的屋架,增加了檩条,全屋更换了防水和屋面瓦。南房和西房在原有标高基础上下降了60cm,与东、北房标高一致,并保持屋脊高度不变,这样一来西、南房增加了室内净高,设计者利用增加的高度在两个客房做了夹层,增加了客房的趣味性。

改造过程保留了老屋的传统木质结构

客房的景观

为客房设计的夹层

材料

为了营造内合院传统自然的氛围,设计者选用了竹钢作为外围护和立面的主要材料。竹钢是一种高性能竹基纤维复合材料,具有绿色环保,强度高,加工性好的特点,最重要是它既可以作为结构承重构件,同时也可以直接作为外饰面。颜色和质地都好过与后期加上去的装饰材料。内院立面大面积玻璃和竹木材质构成了充满现代主义的简洁构图,表达了设计者对传统的尊重,对自然的追求和对居住品质的追求。

内院中使用的竹钢材料

项目价值

旧城区老房子里的内部改造总能对社会人群形成极大的吸引力。它的最大价值不仅在于住宿,而在于展示了一个新旧结合的可能性,为老城更新赐予了更高的信心,勾勒出了北京旧城更新的前景。

夜色中的小院

平面

【项目信息】

设计单位:全壹建筑设计

建筑师:尚懿 白云祥 刘云

项目地点:西扬威胡同,北京

项目时间:2016/10-2017/2

项目类型:历史建筑改造

改造面积:230㎡

往期精选

投稿 | 广告 | 合作

邮箱:65858990@qq.com 微信:65858990

民宿设计秀,传播优秀案例,助力民宿设计!

▼点击下方蓝字“民宿设计秀”,加入民宿星球!

享受所有民宿资料免费下载,以及民宿设计咨询解答服务。

 

什么,装修还用自己的钱?!齐家装修分期,超低年利率3.55%起,最高可贷100万。立即申请享受优惠

已有0条评论

根据该面积估算半包报价为 :

65610.1

因选择的材料品牌、施工工艺及实际工程量的不同,报价会有差异,具体报价还以装修公司上门实地量房后计算的报价为准,立即精准报价

报名获取更多优惠

活动亮点

免费热线:400-660-7700

我已阅读并且同意齐家网的 用户协议

立即报名

您好,90天内您装修开工的最佳吉日是:

2015年11月14日 星期六 十月 初三

【乙未年 丁亥月 甲午日 】

若当天您无法开工,2015年11月20日 星期五 十月初九【乙未年 丁亥月 庚子日】也是您装修开工的吉日。

结果已同步发送到您手机,齐家网,帮助用户轻松实现装修,感谢您的使用。

星座匹配装修风格:

白羊座 更适合于“现代简约” 装修风格

喜欢出风头的羊儿不太希望自己的家居风格与他人一致。后现代风格强调建筑及室内装潢应具有历史的延续性,但又不拘泥于传统的逻辑思维方式,使得整个家居环境时髦又不失品味。白羊比较喜欢在家中接待友人,这种装修风格能让白羊在接待友人时面子十足。

可参考如下更多“现代简约”风格装修案例图 更多

恭喜您,报名成功!