齐家网 > 资讯 > 装修头条 > 装修达人 > 正文

解构新的民宿含义,在上海里弄的新旧蝶变,渝舍印象酒店 | 本哲建筑0

2019-04-05 04:44:39

▲ 点击上方蓝字“民宿设计秀”,关注公众号回复数字“1”获取100套精品民宿设计案例图文 | 来源网络项目地址位于中国上海市复兴东路上,毗邻豫园,故取谐音“渝舍印象”。项目原是一家旧招待所兼棋牌室,随着时代变迁和城市再造更新,业主希望在加固原有结构的基础上解构新的民宿含义。原招待所由四栋旧楼组成,

▲点击上方蓝字“民宿设计秀”,关注公众号

回复数字1获取100套精品民宿设计案例

图文 | 来源网络

项目地址位于中国上海市复兴东路上,毗邻豫园,故取谐音“渝舍印象”。项目原是一家旧招待所兼棋牌室,随着时代变迁和城市再造更新,业主希望在加固原有结构的基础上解构新的民宿含义。

原招待所由四栋旧楼组成,楼内空间狭小,光线不足,改造的重点便是空间重构,为原本狭小昏暗的内部空间引入阳光和自然。历经半年余,设计师将旧宅解构嫁接成现在的一栋庭院相间、内外相连的复合建筑。由水岸造景、露台、客房、餐厅、茶室以及园林等部分组成,兼具了民宿的功能性和景观,讲究细节的精致打磨,在整体房屋格局修旧如旧的基础上,通过内饰和软装的搭配,让昔日的上海里弄经历了新旧交替的时代蝶变。

改造后的渝舍印象由两栋楼组成,设计过程从整合的角度梳理了文化、自然、建筑之间的关系。以入口处以折叠巡回的青砖引入,为空间的公共与私密提供了过渡。参考北方的四合院和上海小院的特点,设计师大刀阔斧,在寸土寸金的上海市中心辟出一处院落,解决了建筑间的孤立状态,使客房、前厅大堂和咖啡厅视觉上遥相呼应,院落的引入集中体现了传统建筑的造园思想。

大片窗户和钢板组成干干净净的冷色基调,与透出的暖黄光形成对比,正如渝舍印象的经营模式:用酒店式的管理方法,民宿的人文情怀去经营。这里有书籍、音乐、咖啡和茶,懒懒地坐在舒服的沙发上,发呆、看书、聊天,坐上一下午。

民宿客房在朝南的主楼,楼内空间功能分区布局巧妙,恰到好处。中庭,将楼道空间与露台以及后院全部打通,达到视线与空间的最大程度的开放。玻璃天窗保证了客房公共区域的采光需求,一改老旧房屋的昏暗,铜质和实木相结合的楼梯承上启下。阳光照进天窗,辗转映射在二楼白墙,透过挑空的中庭玻璃栈道照射到一楼水磨石地面,整个空间一气呵成,显得更加充沛明亮。

设计师认为民宿出彩于细节,也就是人们所说的见微知著,渝舍印象的美学就体现于用心极其考究。设计师有一套完整独立的美学理念,即便是小摆设都是设计师亲自挑选的,一花一世界,一叶一菩提,只有富有诗意的设计师才会为十二间房都配上独一无二的名字:淳、源、澜、润、游、涵、淡、潺、浮、湉、漫、滋,每个房间都有自己的风格和故事,欲将意义消解在文字里,一种温柔而坚韧的东方美感魅力,人们一旦被触动,就很难自拔。

渝舍印象共打造了两个loft大跃层房间,以作为城市民宿的刚需与亮点,分别取名“润”“澜”。房间面积55平方米,利用高处做二层,一层则有足够的空间做配套设施:开放式洗浴空间、休闲会客区等。楼上是休息区域,将工作休闲与休息区分开,保证了客人的私密性。楼顶的一扇电动斜顶天窗,提供广阔清晰的视野,白天采光深度大而均匀,夜晚躺在床上仿佛身处一座天空之城,伸手即够得到天上的星星。

房间“淳”主基调是新中式风格,因其质朴敦厚而得名“淳”,房间里大大的玻璃落地窗,让你安静地看这个绿色的小世界,不去打扰那院中的生灵,毗邻闹市却又大隐于市。

在新中式风格设计过程中,采用简化的手法来体现中国传统文化内涵,古代“镜”原以铜或铁铸,现代设计师喜欢采用未经过度加工的铜料与圆形镜面组合,要勾勒生活品质,一个足以。简约梳妆台遇见陶瓷大浴缸,木艺遇见铁艺,厚重的铜镜遇到琉璃玻璃窗,现代化设施遇到别出心裁的设计,这就是渝舍印象。

城市民宿除了硬件的完善,核心文化也是至关重要的,人们被民宿想要表达的情感所征服,认同它的理念,赞美它陈述的生活方式,它所表达的人生态度,这间民宿才被称为精品民宿,或者是文化民宿。设计师在打造渝舍印象的时候,希望带给在钢筋混凝土城市里生活和工作的人,享受到便利的智能化设施和温暖的人文情怀。

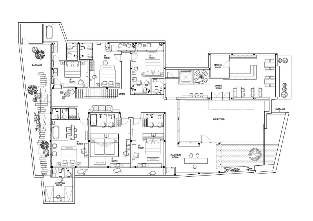
一层平面图

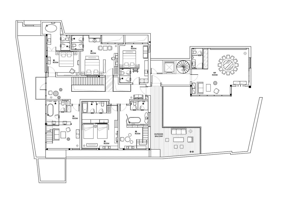
二层平面图

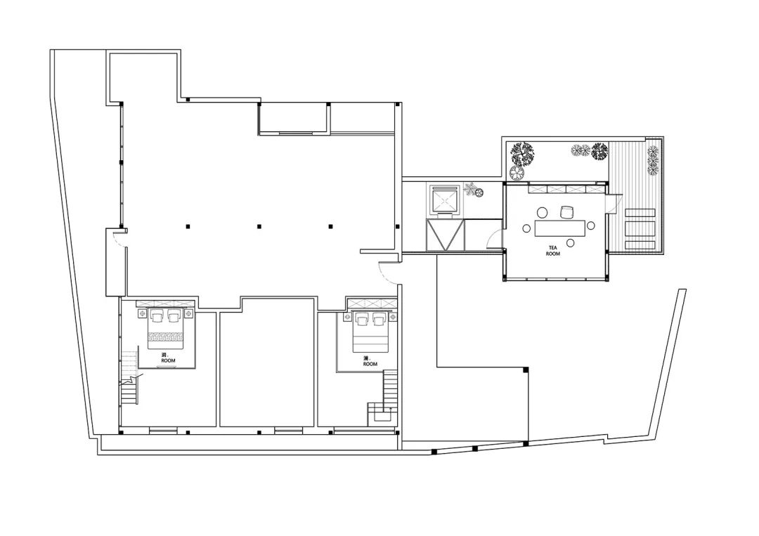
三层平面图

【项目信息】

项目名称:渝舍印象酒店

项目地点:中国上海市复兴东路439号

设计单位:上海本哲建筑设计有限公司

设计单位网站:www.benzhedesign.com

建筑面积:678㎡

主案建筑师:蒋华健

设计时间:2017.04-2017.06

施工时间:2017.06-2018.02

平面设计:本哲建筑设计

摄影:©是然建筑摄影,金选民

产品:科勒智能马桶、金可儿,汉斯格雅

往期精选

投稿 | 广告 | 合作

邮箱:65858990@qq.com 微信:65858990

民宿设计秀,传播优秀案例,助力民宿设计!

▼点击下方蓝字“民宿设计秀”,加入民宿星球!

享受所有民宿资料免费下载,以及民宿设计咨询解答服务。

 

什么,装修还用自己的钱?!齐家装修分期,超低年利率3.55%起,最高可贷100万。立即申请享受优惠

已有0条评论

根据该面积估算半包报价为 :

65610.1

因选择的材料品牌、施工工艺及实际工程量的不同,报价会有差异,具体报价还以装修公司上门实地量房后计算的报价为准,立即精准报价

报名获取更多优惠

活动亮点

免费热线:400-660-7700

我已阅读并且同意齐家网的 用户协议

立即报名

您好,90天内您装修开工的最佳吉日是:

2015年11月14日 星期六 十月 初三

【乙未年 丁亥月 甲午日 】

若当天您无法开工,2015年11月20日 星期五 十月初九【乙未年 丁亥月 庚子日】也是您装修开工的吉日。

结果已同步发送到您手机,齐家网,帮助用户轻松实现装修,感谢您的使用。

星座匹配装修风格:

白羊座 更适合于“现代简约” 装修风格

喜欢出风头的羊儿不太希望自己的家居风格与他人一致。后现代风格强调建筑及室内装潢应具有历史的延续性,但又不拘泥于传统的逻辑思维方式,使得整个家居环境时髦又不失品味。白羊比较喜欢在家中接待友人,这种装修风格能让白羊在接待友人时面子十足。

可参考如下更多“现代简约”风格装修案例图 更多

恭喜您,报名成功!