齐家网 > 资讯 > 装修头条 > 装修达人 > 正文

旧石材与现代涂鸦的偶遇,美国奥斯汀Native青年旅社 | un.box studio0

2019-04-05 05:00:22

▲ 点击上方蓝字“民宿设计秀”,关注公众号回复数字“1”获取100套精品民宿设计案例图文 | 来源网络奥斯汀本地民宿、酒吧 & 餐厅(The Native Hostel,Bar& Kitchen)是为旅行者以及当地人而设计的,并且集精品民宿、酒吧、咖啡厅与活动场地等功能于一身。它正

▲点击上方蓝字“民宿设计秀”,关注公众号

回复数字1获取100套精品民宿设计案例

图文 | 来源网络

奥斯汀本地民宿、酒吧 & 餐厅(The Native Hostel,Bar& Kitchen)是为旅行者以及当地人而设计的,并且集精品民宿、酒吧、咖啡厅与活动场地等功能于一身。它正好位于临近市中心的交通枢纽区,坐落于一幢现存19世纪末期建造的两层石头建筑和一座中世纪风格的石砖房内。

Native包括12间客房,共65个床位,以及充足的公共活动空间让人流连忘返。空间开放而舒适,在日渐感到孤立的社会中,为人提供可分享的交流空间,他们来到这里,和最亲密的朋友们欢聚。此外,Native还包含一个咖啡厅,酒吧,会客厅等公共空间。

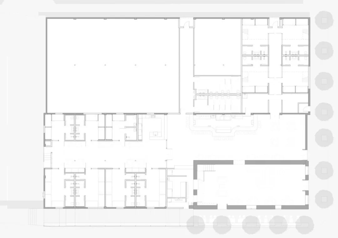
▼平面布置图

建筑设计:un.box studio

项目地址:美国,德克萨斯州

建筑面积:1530 平方米

项目年份:2017

项目摄影:Chase Daniel

室内设计:Joel Mozersky Design

总承包商:Icon Design-Build

品牌创意:Helms Workshop

结构工程师:JM Structural Engineering

MEP工程师:Nichols Engineering

建筑设计:un.box studio

项目业主:Icon Design-Build

往期精选

投稿 | 广告 | 合作

邮箱:65858990@qq.com 微信:65858990

民宿设计秀,传播优秀案例,助力民宿设计!

▼点击下方蓝字“民宿设计秀”,加入民宿星球!

享受所有民宿资料免费下载,以及民宿设计咨询解答服务。

 

什么,装修还用自己的钱?!齐家装修分期,超低年利率3.55%起,最高可贷100万。立即申请享受优惠

相关阅读

已有0条评论

根据该面积估算半包报价为 :

65610.1

因选择的材料品牌、施工工艺及实际工程量的不同,报价会有差异,具体报价还以装修公司上门实地量房后计算的报价为准,立即精准报价

报名获取更多优惠

活动亮点

免费热线:400-660-7700

我已阅读并且同意齐家网的 用户协议

立即报名

您好,90天内您装修开工的最佳吉日是:

2015年11月14日 星期六 十月 初三

【乙未年 丁亥月 甲午日 】

若当天您无法开工,2015年11月20日 星期五 十月初九【乙未年 丁亥月 庚子日】也是您装修开工的吉日。

结果已同步发送到您手机,齐家网,帮助用户轻松实现装修,感谢您的使用。

星座匹配装修风格:

白羊座 更适合于“现代简约” 装修风格

喜欢出风头的羊儿不太希望自己的家居风格与他人一致。后现代风格强调建筑及室内装潢应具有历史的延续性,但又不拘泥于传统的逻辑思维方式,使得整个家居环境时髦又不失品味。白羊比较喜欢在家中接待友人,这种装修风格能让白羊在接待友人时面子十足。

可参考如下更多“现代简约”风格装修案例图 更多

恭喜您,报名成功!

沪ICP备13002314号-1 沪B2-20170342 组织机构代码证:66439109—1

中国互联网协会信用评价中心网信认证 网信编码:1664391091 举报电话:400-660-7700

齐家网 版权所有Copyright © 2005- www.jia.com All rights reserved