齐家网 > 资讯 > 装修头条 > 装修达人 > 正文

把山野里的晚风装进画框里,北京画框里民宿样板间 | 无隐装饰设计0

2019-04-05 05:12:20

▲ 点击上方蓝字“民宿设计秀”,关注公众号回复数字“1”获取100套精品民宿设计案例图文 | 来源网络画框里建筑面积135平米,庭院面积450平米。是惠爱乡居美丽乡村建设开发的民宿样板间。当地有百鸟节习俗故选用百鸟之王孔雀为设计主题,将孔雀羽毛的几种蓝色、绿色以及紫色蔓延到各个空间及设计细部。室内

▲点击上方蓝字“民宿设计秀”,关注公众号

回复数字1获取100套精品民宿设计案例

图文 | 来源网络

画框里建筑面积135平米,庭院面积450平米。是惠爱乡居美丽乡村建设开发的民宿样板间。当地有百鸟节习俗故选用百鸟之王孔雀为设计主题,将孔雀羽毛的几种蓝色、绿色以及紫色蔓延到各个空间及设计细部。室内外尽可能保留老建筑的原始风貌沧桑美比如木梁结构灰瓦屋檐等,在此基础上将之前的老木格窗改为落地窗解决采光问题,将淋浴、浴缸等现代化设备移植到室内满足都市人生活习惯。院落设计保留了原院子内的梨树巧妙的用金属板圆形与之融合,使之成为一个遮阳观景平台。西院设有时尚的水晶砖水吧台满足使用功能同时增加时尚元素。东院为下凹式烤火区。结合餐厅二层露台让整个院子更有层次感。整体设计以时尚为主基调凸显乡村美的同时又满足了高品质生活需求。

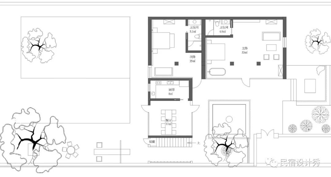
平面布置图

项目名称:画框里民宿

建筑师或者建筑公司:北京无隐装饰设计有限公司

联系邮箱:wuyinsheji@126.com

项目设计&完成年份:2017年

主创及设计团队:李帅

项目地址:北京延庆水泉子村

建筑面积:150㎡

摄影师:李双喜

合作方:Partners

客户:惠爱乡居

品牌:华伦家具、格莱美壁画、马可波罗地砖

往期精选

投稿 | 广告 | 合作

邮箱:65858990@qq.com 微信:65858990

民宿设计秀,传播优秀案例,助力民宿设计!

▼点击下方蓝字“民宿设计秀”,加入民宿星球!

享受所有民宿资料免费下载,以及民宿设计咨询解答服务。

 

什么,装修还用自己的钱?!齐家装修分期,超低年利率3.55%起,最高可贷100万。立即申请享受优惠

已有0条评论

根据该面积估算半包报价为 :

65610.1

因选择的材料品牌、施工工艺及实际工程量的不同,报价会有差异,具体报价还以装修公司上门实地量房后计算的报价为准,立即精准报价

报名获取更多优惠

活动亮点

免费热线:400-660-7700

我已阅读并且同意齐家网的 用户协议

立即报名

您好,90天内您装修开工的最佳吉日是:

2015年11月14日 星期六 十月 初三

【乙未年 丁亥月 甲午日 】

若当天您无法开工,2015年11月20日 星期五 十月初九【乙未年 丁亥月 庚子日】也是您装修开工的吉日。

结果已同步发送到您手机,齐家网,帮助用户轻松实现装修,感谢您的使用。

星座匹配装修风格:

白羊座 更适合于“现代简约” 装修风格

喜欢出风头的羊儿不太希望自己的家居风格与他人一致。后现代风格强调建筑及室内装潢应具有历史的延续性,但又不拘泥于传统的逻辑思维方式,使得整个家居环境时髦又不失品味。白羊比较喜欢在家中接待友人,这种装修风格能让白羊在接待友人时面子十足。

可参考如下更多“现代简约”风格装修案例图 更多

恭喜您,报名成功!