齐家网 > 资讯 > 装修头条 > 装修达人 > 正文

78平的简约风小户型二居室,好温馨和年轻的小窝0

2019-04-05 06:02:12

关注微信公众号:jiaxhx,学习更多小户型装修知识技巧齐家小菜今天分享的是一套建筑面积78平米的简约风小户型二居室案例,设计师以原木与灰色、白色为主,来营造出一种年轻大方而又温馨舒适的居住氛围。屋主也在细节上加入了各种自己喜欢的装饰品,来展现出自己对于艺术和文化的品位。平面布置图入户门位于房子的

关注微信公众号:jiaxhx,学习更多小户型装修知识技巧

齐家小菜今天分享的是一套建筑面积78平米的简约风小户型二居室案例,设计师以原木与灰色、白色为主,来营造出一种年轻大方而又温馨舒适的居住氛围。屋主也在细节上加入了各种自己喜欢的装饰品,来展现出自己对于艺术和文化的品位。

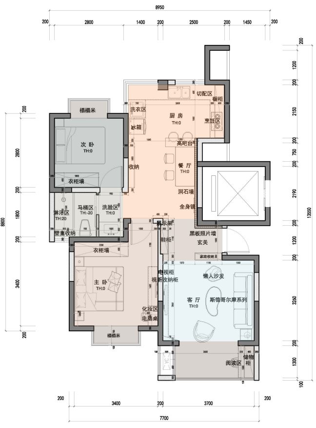
平面布置图

入户门位于房子的中间,设计师在入户门的对面做上原木风的鞋柜,鞋柜的中间和底部都选择了留空,中间摆放的机器人和车都是屋主所喜爱的。

玄关鞋柜和电视背景墙的边框造型也是连在一起的,电视柜内也摆放了跟各种车模,电视背景墙做了突出的磨砂玻璃造型,后方还有着藏光的设计。

沙发背景墙选择了刷成浅灰色,用隔板搭配挂画和绿植作为点缀,橙色的皮沙发搭配简洁的茶几和懒人沙发,把活力与慵懒都体现了出来。

(ps:现在添加微信:qijiavh,即可预约全国300+城市的免费报价服务和量房设计!)

在客厅外的阳台一侧还做了迷你的书房区,椅子可以塞进书桌下方,上方的吊柜搭配网格板实用又有趣,给阳台配上百叶帘更是无比舒适。

位于入户门另一侧的就是餐厅空间,餐桌椅边上是一个小吧台。餐厅的墙面选择了非常有设计感的洞石墙,给这个空间带来了别致的美感。

厨房是开放式的布局,L形的橱柜和洗衣机、冰箱紧凑的结合在一起,整体灰色搭配白色的柜子,让人感觉简洁而又轻松。

主卧室的面积不大,淡灰绿色的床品和背景墙相互呼应,护墙板也做床头靠背使用,床头两侧摆放迷你边几和一个摇椅,塞床头柜就显得太拥挤了。

像儿童房内就没有摆放床头柜,衣柜和床之间留出部分空间,方便开关柜门和日常通行。儿童房外的就是卫生间的干区,洗手台移到了门外。

卫生间的内部也做了干湿分离,用一扇玻璃隔断门搭配挡水条来分隔马桶和淋浴区,黑色的六边砖搭配白色的大理石墙砖,让人感觉简约而又文艺。

(我们致力于保护作者版权,部分作品来自互联网.无法核实真实出处,如涉及侵权,请直接联系小编删除.谢谢!)

温馨提示:点击右上角小圆点,查看公众号可设为星标,再也不怕错过我们的更新啦~

加微信:qijiavh,或扫描下方二维码,即可根据您家户型,0元定制720度3D全景家装效果图,还未装修,亲眼看见装修后的效果!!

想知道自家装修多少钱?点击“小户型装修案例精选”马上就能算出来!

 

什么,装修还用自己的钱?!齐家装修分期,超低年利率3.55%起,最高可贷100万。立即申请享受优惠

已有0条评论

根据该面积估算半包报价为 :

65610.1

因选择的材料品牌、施工工艺及实际工程量的不同,报价会有差异,具体报价还以装修公司上门实地量房后计算的报价为准,立即精准报价

报名获取更多优惠

活动亮点

免费热线:400-660-7700

我已阅读并且同意齐家网的 用户协议

立即报名

您好,90天内您装修开工的最佳吉日是:

2015年11月14日 星期六 十月 初三

【乙未年 丁亥月 甲午日 】

若当天您无法开工,2015年11月20日 星期五 十月初九【乙未年 丁亥月 庚子日】也是您装修开工的吉日。

结果已同步发送到您手机,齐家网,帮助用户轻松实现装修,感谢您的使用。

星座匹配装修风格:

白羊座 更适合于“现代简约” 装修风格

喜欢出风头的羊儿不太希望自己的家居风格与他人一致。后现代风格强调建筑及室内装潢应具有历史的延续性,但又不拘泥于传统的逻辑思维方式,使得整个家居环境时髦又不失品味。白羊比较喜欢在家中接待友人,这种装修风格能让白羊在接待友人时面子十足。

可参考如下更多“现代简约”风格装修案例图 更多

恭喜您,报名成功!