齐家网 > 资讯 > 装修头条 > 装修达人 > 正文

89平的现代风小户型三居室,儿童房的布置好科幻0

2019-04-05 08:02:16

关注微信公众号:jiaxhx,学习更多小户型装修知识技巧齐家小菜今天分享的是一套建筑面积89平米的现代风小户型三居室案例,房子整体的格局比较端正,三间卧室和客厅、餐厅、厨房、卫生间都划分在了不同的空间内,设计师以时尚大方的现代风为基础,加入了精致的软装,营造出了优雅、有气质的居住氛围。平面布置图客

关注微信公众号:jiaxhx,学习更多小户型装修知识技巧

齐家小菜今天分享的是一套建筑面积89平米的现代风小户型三居室案例,房子整体的格局比较端正,三间卧室和客厅、餐厅、厨房、卫生间都划分在了不同的空间内,设计师以时尚大方的现代风为基础,加入了精致的软装,营造出了优雅、有气质的居住氛围。

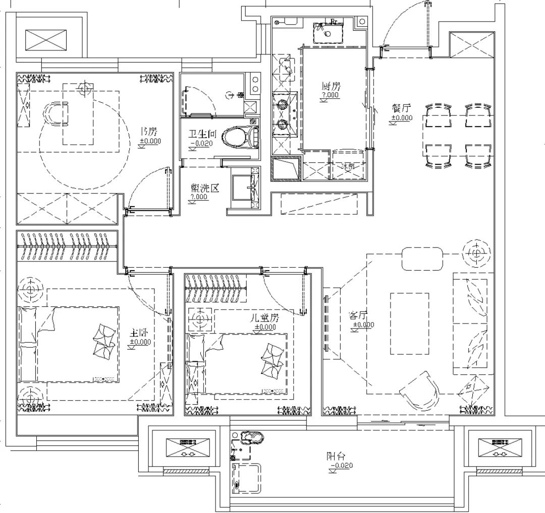
平面布置图

客厅和餐厅是位于入户这个开放的空间内,客厅的电视背景墙做大理石的设计,沙发背景墙和餐厅连在一起,整体的配色简洁而又大方。

大理石的餐桌台面搭配底部创意的桌脚,橙黄色的布艺椅子让餐厅更加亮眼。侧方还有嵌入式的餐边柜、鞋柜,增强餐厅的实用性。

厨房的面积还是比较宽敞的,做了U字形的橱柜布局,水槽上方的墙面留空,可以避免柜子太满带来的压抑感。

(ps:现在添加微信:qijiavh,即可预约全国300+城市的免费量房设计和报价服务!)

主卧室的床头背景墙两侧做了对称的黑玻设计,终究是一幅圆形的创意画,以黑色、灰色和素色为主的配色方案,让人感觉宁静而又素雅。

在床侧的衣柜是做了嵌入式的,搭配黑色的玻璃推拉门看起来更有现代感,也能够节省室内的空间,床的左右摆放床头柜也不拥挤。

次卧的面积会更小一些,只在床头的一个摆放了床头柜,另一侧做个斗柜搭配装饰画和装饰品来点缀,整体让人感觉很时尚。

儿童房的整体的设计让人感觉很有科幻感,主体是以太空为主,床、床头背景墙都选择了相关的元素,也可以培养孩子的爱好。

床头柜上方还被摆放了带罩子的装饰品,侧方的柜子造型也比较可爱有趣,儿童房的设计不仅是有科幻感,也能让人感觉到可爱、浪漫。

阳台的一侧被屋主改成了一个迷你的休闲区,地面摆放桌椅,墙面用四个创意的置物架来摆放绿植,清新而又悠闲。

(我们致力于保护作者版权,部分作品来自互联网.无法核实真实出处,如涉及侵权,请直接联系小编删除.谢谢!)

温馨提示:点击右上角小圆点,查看公众号可设为星标,再也不怕错过我们的更新啦~

加微信:qijiavh,或扫描下方二维码,即可根据您家户型,0元定制720度3D全景家装效果图,还未装修,亲眼看见装修后的效果!!

想知道自家装修多少钱?点击“小户型装修案例精选”马上就能算出来!

 

什么,装修还用自己的钱?!齐家装修分期,超低年利率3.55%起,最高可贷100万。立即申请享受优惠

已有0条评论

根据该面积估算半包报价为 :

65610.1

因选择的材料品牌、施工工艺及实际工程量的不同,报价会有差异,具体报价还以装修公司上门实地量房后计算的报价为准,立即精准报价

报名获取更多优惠

活动亮点

免费热线:400-660-7700

我已阅读并且同意齐家网的 用户协议

立即报名

您好,90天内您装修开工的最佳吉日是:

2015年11月14日 星期六 十月 初三

【乙未年 丁亥月 甲午日 】

若当天您无法开工,2015年11月20日 星期五 十月初九【乙未年 丁亥月 庚子日】也是您装修开工的吉日。

结果已同步发送到您手机,齐家网,帮助用户轻松实现装修,感谢您的使用。

星座匹配装修风格:

白羊座 更适合于“现代简约” 装修风格

喜欢出风头的羊儿不太希望自己的家居风格与他人一致。后现代风格强调建筑及室内装潢应具有历史的延续性,但又不拘泥于传统的逻辑思维方式,使得整个家居环境时髦又不失品味。白羊比较喜欢在家中接待友人,这种装修风格能让白羊在接待友人时面子十足。

可参考如下更多“现代简约”风格装修案例图 更多

恭喜您,报名成功!