齐家网 > 资讯 > 装修头条 > 装修达人 > 正文

58平的简约风小户型二居室,主卧都被改成了榻榻米0

2019-04-05 08:06:12

关注微信公众号:jiaxhx,学习更多小户型装修知识技巧齐家小菜今天分享的是一套建筑面积58平米的简约风小户型二居室案例,房子的面积比较窄,但屋主还是划分了两个卧室出来,客餐厨被结合放在了同一个空间内,主卧室大半的面积被改成了榻榻米,可以说是紧凑而又实用的家!平面布置图入户就是开放空间的格局,设计

关注微信公众号:jiaxhx,学习更多小户型装修知识技巧

齐家小菜今天分享的是一套建筑面积58平米的简约风小户型二居室案例,房子的面积比较窄,但屋主还是划分了两个卧室出来,客餐厨被结合放在了同一个空间内,主卧室大半的面积被改成了榻榻米,可以说是紧凑而又实用的家!

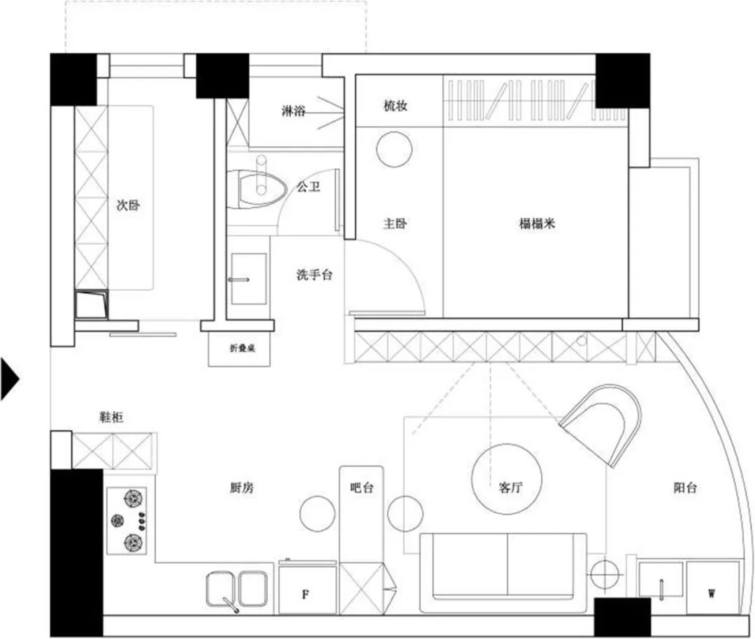
平面布置图

入户就是开放空间的格局,设计师在橱柜和入户门之间做个一个到顶的鞋柜来作为隔断,鞋柜底部和中间留空方便日常使用。

厨房的面积并不大,橱柜是L形的格局,操作台的上方也加上了挂杆来辅助收纳,开放式的厨房就要担心油烟的问题,减少爆炒、煎炸等。

餐厅是由一个迷你的吧台构成的,也把厨房和客厅给分开了,吧台侧方的墙面还做了铁丝照片墙的设计,让人感觉更加有情调。

(ps:现在添加微信:qijiavh,即可预约全国300+城市的免费量房设计和报价服务!)

客厅和阳台之间只是用窗帘来分开,在窗帘上还做了隐藏的投影幕布。客厅的沙发背景墙刷成了浅蓝色,搭配简洁的装饰画看起来非常清新文艺。

客厅外的阳台一侧是做了洗衣机和洗手台的组合式设计,上方的墙面刷成了粉色,让阳台空间变得更加的优雅、有趣。

客厅的电视背景墙是别改成了整墙定制柜的设计,白色的柜门搭配木色的开放格,在满足收纳的同时,也让人感觉非常好看。

主卧室的面积不大,屋主选择了把靠窗的空间都做成榻榻米床,床尾的地方做衣柜,侧方留出的面积刚好可以摆放一个梳妆台。

卫生间被设计成了彻底干湿分离的设计,洗手台外移在了卫生间的门外,镜柜结合浴室柜也能够满足收纳的需求。

卫生间内部也把淋浴区和马桶给分开了,浴帘和挡水条更加简便。在淋浴区内做上壁龛来辅助收纳,水泥质感的墙地砖显得非常别致。

(我们致力于保护作者版权,部分作品来自互联网.无法核实真实出处,如涉及侵权,请直接联系小编删除.谢谢!)

温馨提示:点击右上角小圆点,查看公众号可设为星标,再也不怕错过我们的更新啦~

加微信:qijiavh,或扫描下方二维码,即可根据您家户型,0元定制720度3D全景家装效果图,还未装修,亲眼看见装修后的效果!!

想知道自家装修多少钱?点击“小户型装修案例精选”马上就能算出来!

 

什么,装修还用自己的钱?!齐家装修分期,超低年利率3.55%起,最高可贷100万。立即申请享受优惠

相关阅读

已有0条评论

根据该面积估算半包报价为 :

65610.1

因选择的材料品牌、施工工艺及实际工程量的不同,报价会有差异,具体报价还以装修公司上门实地量房后计算的报价为准,立即精准报价

报名获取更多优惠

活动亮点

免费热线:400-660-7700

我已阅读并且同意齐家网的 用户协议

立即报名

您好,90天内您装修开工的最佳吉日是:

2015年11月14日 星期六 十月 初三

【乙未年 丁亥月 甲午日 】

若当天您无法开工,2015年11月20日 星期五 十月初九【乙未年 丁亥月 庚子日】也是您装修开工的吉日。

结果已同步发送到您手机,齐家网,帮助用户轻松实现装修,感谢您的使用。

星座匹配装修风格:

白羊座 更适合于“现代简约” 装修风格

喜欢出风头的羊儿不太希望自己的家居风格与他人一致。后现代风格强调建筑及室内装潢应具有历史的延续性,但又不拘泥于传统的逻辑思维方式,使得整个家居环境时髦又不失品味。白羊比较喜欢在家中接待友人,这种装修风格能让白羊在接待友人时面子十足。

可参考如下更多“现代简约”风格装修案例图 更多

恭喜您,报名成功!

沪ICP备13002314号-1 沪B2-20170342 组织机构代码证:66439109—1

中国互联网协会信用评价中心网信认证 网信编码:1664391091 举报电话:400-660-7700

齐家网 版权所有Copyright © 2005- www.jia.com All rights reserved