齐家网 > 资讯 > 装修头条 > 装修达人 > 正文

65平的长条形小户型二居室,暗厅也能装得很明亮0

2019-04-05 08:34:14

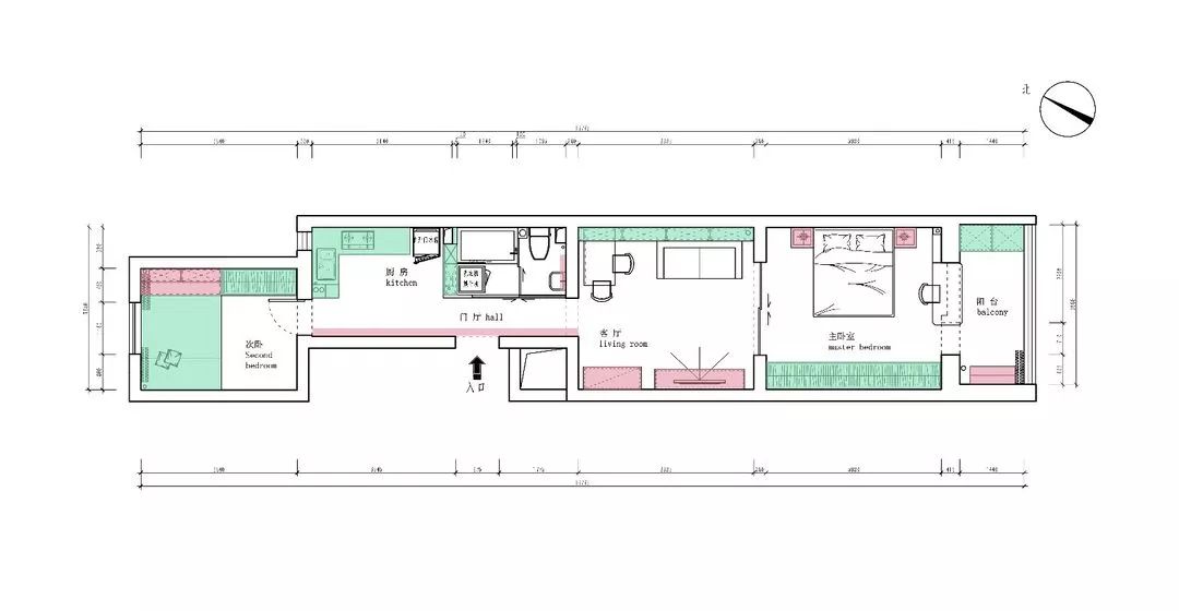
关注微信公众号:jiaxhx,学习更多小户型装修知识技巧齐家小菜今天分享的是一套建筑面积65平米的简约风小户型二居室案例,房子的格局是长条形的,两间卧室位于南北两侧,中间是厨房、玄关走廊、卫生间和客餐厅空间,虽然房子的采光不好,但整体的设计却非常的明亮和温馨,让人羡慕不已。平面布置图入户的玄关走廊

关注微信公众号:jiaxhx,学习更多小户型装修知识技巧

齐家小菜今天分享的是一套建筑面积65平米的简约风小户型二居室案例,房子的格局是长条形的,两间卧室位于南北两侧,中间是厨房、玄关走廊、卫生间和客餐厅空间,虽然房子的采光不好,但整体的设计却非常的明亮和温馨,让人羡慕不已。

平面布置图

入户的玄关走廊连通了厨房和客餐厅,走廊的宽度不够,所以没有摆放鞋柜,而是由一个立式的鞋架和穿衣镜、挂钩等组成,更加轻便。

厨房就在入户门的厨房,嵌入式的柜子搭配开放式的布局,冰箱也被嵌入了橱柜和吊柜之间。地面铺贴人字拼的木地板,延伸空间视觉感。

厨房的橱柜也做了L形的布局,采光就靠着次卧和侧方的一小扇窗户了,以白色的墙砖搭配木色的柜子,让整个空间看起来更加明亮、舒适。

(ps:现在添加微信:qijiavh,即可预约全国300+城市的免费量房设计和报价服务!)

客餐厅位于玄关走廊的另一侧,是个完全暗厅的格局,所以整体以白色为主,搭配原木风的家具,沙发背景墙的书架内还加上了藏光,看起来就更明亮许多。

客厅也承担着通道的作用,所以把茶几也给省略了,主卧室和客厅之间用磨砂玻璃加木栅栏的推拉门作为隔断,让客厅能够借到一些光线。

主卧室的内部设计非常的简洁,床头背景墙直接刷成了浅灰色,侧方挂上一幅国风装饰画,搭配木质的床和床头柜,给人一种淡淡的禅意感。

主卧室的床尾被全部利用起来改成了储物柜,衣柜的柜门选择了比较少见的折叠门,打开之后也能够给人一种衣帽间的感觉。

次卧被设计成了榻榻米床组合书桌柜和衣柜的设计,利用床尾的空间来留出一个书桌柜的空间,让次卧的活动空间变得更加充足。

卫生间是在玄关走廊处,设计师用磨砂玻璃来隔出了卫生间空间,浴缸、洗衣机、马桶和洗手台都被分开,做了彻底的干湿分离设计。

(我们致力于保护作者版权,部分作品来自互联网.无法核实真实出处,如涉及侵权,请直接联系小编删除.谢谢!)

温馨提示:点击右上角小圆点,查看公众号可设为星标,再也不怕错过我们的更新啦~

加微信:qijiavh,或扫描下方二维码,即可根据您家户型,0元定制720度3D全景家装效果图,还未装修,亲眼看见装修后的效果!!

想知道自家装修多少钱?点击“小户型装修案例精选”马上就能算出来!

 

什么,装修还用自己的钱?!齐家装修分期,超低年利率3.55%起,最高可贷100万。立即申请享受优惠

已有0条评论

根据该面积估算半包报价为 :

65610.1

因选择的材料品牌、施工工艺及实际工程量的不同,报价会有差异,具体报价还以装修公司上门实地量房后计算的报价为准,立即精准报价

报名获取更多优惠

活动亮点

免费热线:400-660-7700

我已阅读并且同意齐家网的 用户协议

立即报名

您好,90天内您装修开工的最佳吉日是:

2015年11月14日 星期六 十月 初三

【乙未年 丁亥月 甲午日 】

若当天您无法开工,2015年11月20日 星期五 十月初九【乙未年 丁亥月 庚子日】也是您装修开工的吉日。

结果已同步发送到您手机,齐家网,帮助用户轻松实现装修,感谢您的使用。

星座匹配装修风格:

白羊座 更适合于“现代简约” 装修风格

喜欢出风头的羊儿不太希望自己的家居风格与他人一致。后现代风格强调建筑及室内装潢应具有历史的延续性,但又不拘泥于传统的逻辑思维方式,使得整个家居环境时髦又不失品味。白羊比较喜欢在家中接待友人,这种装修风格能让白羊在接待友人时面子十足。

可参考如下更多“现代简约”风格装修案例图 更多

恭喜您,报名成功!