点击标题下方榻榻米装修设计(jia-rj),关注我们,让梦想中的新房成为现实!微信又㕛叒叕改版了~更新后很多小伙伴都说找不到妙妙了,茫茫人海中,为防大家走失,请大家点击上方 “榻榻米装修设计” → 点击右上角“...” → 点选“设为星标 ★ ”为妙妙加上星标,就再也不会迷路啦!面积:90㎡户型
点击标题下方榻榻米装修设计(jia-rj),关注我们,让梦想中的新房成为现实!
微信又㕛叒叕改版了~
更新后很多小伙伴都说找不到妙妙了,
茫茫人海中,为防大家走失,请大家
点击上方 “榻榻米装修设计” → 点击右上角“...” → 点选“设为星标★”
为妙妙加上星标,就再也不会迷路啦!

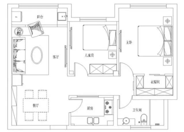
面积:90㎡
户型:两室两厅
项目预算:硬装8万,软装2.7万(窗帘、灯具)家具8万


一个客餐厅一体的空间,而且这个房子本身是没有阳台的,所以后期为了功能的需要,在不影响采光的前提下延展出一个小阳台。

亮色的小饰品,让整个空间都有了年轻的味道。

好多人问电视背景是什么材质做的,其实就是石膏板啊,有暗光灯槽(没有拍开灯效果)。

背景装饰用了一点点镜子点缀,也很有空间拉伸感。

客厅一角,我也特别喜欢。窝在这里看看书,看看电视,是最幸福的了。

正面视觉展现了整体空间的延伸感,大方自然、品味十足。

餐厅45度展示。最美。。。。。。

餐厅正面照,最不美的角度展示最好的效果。

美味不仅仅是嗅觉也要有视觉。

精致的餐厅装饰品,活跃了整体餐厅的空间美。

餐厅一角,清新淡雅。两个小天使像房子的两个小主人一样可爱亲和。

卧室一角的阅读区,是主人最喜欢的也是我最喜欢的,艳丽却不浮夸。

小朋友的房间,满天星、多啦A梦、汽车、恐龙等等,这些都是小朋友的要求,既然是儿童房,装修时当然也要征求小朋友的意见喽。

厨房不大,干净整洁,案台上放了一些装饰物点缀的空间更加活泼。
图片源于网络,版权归原作者所有,如有侵权,请告知我们删除~
加微信:qijiaxm,或扫描下方二维码,即可根据您家户型,0元定制720度3D全景家装效果图,还未装修,亲眼看见装修后的效果!!
戳左下角“榻榻米装修设计”,抢0元设计名额
什么,装修还用自己的钱?!齐家装修分期,超低年利率3.55%起,最高可贷100万。立即申请享受优惠
2015年11月14日 星期六 十月 初三
【乙未年 丁亥月 甲午日 】
结果已同步发送到您手机,齐家网,帮助用户轻松实现装修,感谢您的使用。
白羊座 更适合于“现代简约” 装修风格
可参考如下更多“现代简约”风格装修案例图 更多