齐家网 > 资讯 > 装修头条 > 装修达人 > 正文

她家140㎡三室两厅只留主卧,其余全打通!0

2019-04-09 09:32:25

每个人对于家的定义不同,需求不同,所以在空间设计上,必然会出现很多打破常规的思路,成为千篇一律中的一股清流。今天的屋主阿布,就是一位与众不同的姑娘。因为大多数人对于家的设计,都会尽量追求实用与美观上的满足,但是她对于精神空间的渴求,却远远超过了普遍意义上的“家”的属性。在房主看来,家不仅仅是一个栖

每个人对于家的定义不同,需求不同,所以在空间设计上,必然会出现很多打破常规的思路,成为千篇一律中的一股清流。

今天的屋主阿布,就是一位与众不同的姑娘。

因为大多数人对于家的设计,都会尽量追求实用与美观上的满足,但是她对于精神空间的渴求,却远远超过了普遍意义上的“家”的属性。

在房主看来,家不仅仅是一个栖身之所,更是一个绽放艺术,滋养灵魂的所在。

屋主从事艺术创作,平时的生活主要以工作为主,把生活过成艺术,让艺术主导生活。

在她眼里,“生活本是艺术”,两者没有明显的分界,是完全可以互相交融的。

所以,无论是整个家的空间布局,还是每一个不起眼的装饰细节,都要极力追求艺术的美感,让自己的个性与品味张扬到极致。

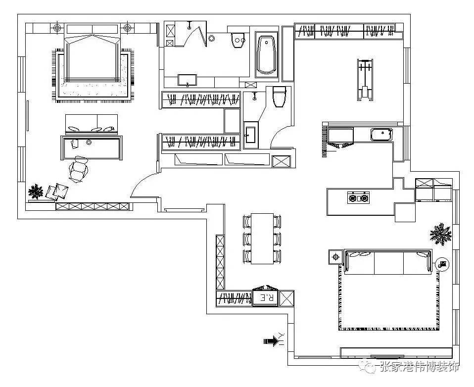
户型图

面积:140平米

原始房型:

房子原本是三室两厅一厨两卫的格局,设计上比较中规中矩,但是屋主希望按照自己的生活方式来重塑空间,将生活与工作的概念融为一体,放弃不必要的隔断来获得极致的开敞空间,因此向设计师提出了自己的诉求,要求打破常规,实现自己理想中的家居生活。

▲ 原始平面图

房型改造:

经过一番细致的沟通与交流后,设计师颠覆了传统的空间布局,将主卧改造为一个多功能的,集书房、衣帽间、卫生间为一体的套房,其他区域则全部打通,呈现出一个没有视线阻碍的开放状态。

▲ 平面结构图

玄 关

从玄关开始,这个家就以一股浓浓的艺术与自然气息,彰显出屋主不凡的生活格调。

在这里,高低错落、列阵相迎的绿植,不仅仅作为一种装饰而存在,而是巧妙地充当了空间的隔断,将绿意携进家里,让人在家待着也能畅快呼吸。

客 厅

客厅是整个家的活动中心,因为放弃了大量隔断,视线上基本处于一个通透的状态,可以延伸到厨房、餐厅甚至更里面的健身房,所以显得宽敞明亮,模糊了各大功能区的界限。

客厅的基本调性,是由一张低饱和度的灰色沙发,以及大面积的几何图案地毯来确定的,整体风格简约舒适,同时又不乏时尚感。

质感柔软的家具配置,在带来温馨、舒适的感觉之余,又与冷峻的水泥灰电视墙进行了中和。

客厅里面没有茶几,在视觉上大大消减了家具体量,所以显得更加轻松、随性。

水泥墙上安装了一台黑色的无屏电视,并在两侧嵌入了光线加以渲染,让整个画面变得柔和起来,给屋主带来极致的观影体验。

沙发脚凳代替传统的茶几,移动起来非常方便,也便于灵活满足生活中的多种需求。偶尔与自己来一场对弈,未尝不能领悟进退之间的生活哲学呢?

阳 台

阳台位于沙发背后的一处墙角,虽然空间面积不大,但刚好放得下一台洗衣机和烘干机,清洁起来非常方便。

在木质台面上摆放几盆绿植,面朝阳光,让它们恣意生长,小小的角落瞬间变得治愈起来。

餐 厅

不同于其他家庭将餐厅单纯作为就餐空间的功能,阿布家的北欧风大长桌,其实还兼具开会的功能。

整个餐厅的设计,主要以大白墙与同色系的壁柜为背景,营造出一种干净明亮的感觉。就连冰箱也藏于柜体之中,令空间效果更为简约。

餐厅右侧的卷轴牛皮纸,方便阿布来灵感时随手记下来,让创作变得随心自由,不受约束。

在照明设计上,设计师用两盏不同的工业风吊灯,搭配着顶部的隐形灯带与筒灯,营造出温馨柔和的空间氛围,便于阿布与工作伙伴在此碰撞出无限的灵感。

厨 房

阿布的生活没有多少柴米油盐的烟火气,做饭也只是兴之所致的消遣,因而在设计上将原来的封闭式厨房,改成了当下流行的开放式。

恰到好处的空间布局,让烹饪也变得文艺而浪漫。

从这个视角看过去,烹饪的位置正好对着客厅的大屏幕,台面上还摆放着读了一半的书籍,由此可见,阿布对于精神食粮的渴求,显然远胜舌尖美味。

浅色的木质台面搭配着黑色柜体,并没有做任何修饰,就让整个厨房显得自然而整洁,高贵之中带有一丝质朴的感觉。

水槽上方的玻璃隔断,采用了不规则的设计,为空间增添了更多层次感,同时在视觉上又延续了通透的调性。

走 廊

走廊空间为灰色水泥地面,与其他区域的人字形木地板,在视觉上做了功能上的区隔,并从玄关一直延伸至健身房。

水泥的清冷与木质的温润,在这个空间进行了完美碰撞,使之既显得浑然一体,又有彼此的区分。

健身房

健身房同时也是这个家的次卧,因为设置了一张隐形床,可以灵活切换两种空间模式。

床板下方还有一个大镜面,收起的时候,既可以扩大空间,也便于健身时在镜子前运动,并矫正自己的仪态。

卧 室

通过一扇纹理自然的木质门,就来到了屋主的卧室。

房门外还悬挂着一张电影画报,墙面背后隐藏灯带,展示了阿布作为一个艺术创作者的工作属性,同时也起到装饰走廊的作用。

卧室的布局一反常规,除了睡眠区之外,还纳入了开放式书房、衣帽间和主卫,变成了一个承载多种功能的私密空间。

开放式书房与对面的床,采用半墙+半玻璃的形式做了隔断,动线上非常明显,空间保持彼此通透又具有互动性。

需要减少视觉压力的时候,直接将白色纱帘拉起来,就能形成一个“纯粹”的睡眠空间了。

书房的陈设也很简单,一个利落的黑色大书架,搭配一张颜色斑驳的古旧书桌,还有一盏民国时期的老上海台灯,就营造出了一个安静舒适的角落。

置身其中,一定会被其安静而文艺的氛围所感染。

主 卫

整个家的黑白灰+原木色调,在主卫区域发生了一点小小的改变。浴缸一侧的那面脏粉色背景墙,正好戳中了姑娘心底的小柔软。

长条形的卫生间同时设置了浴缸和淋浴房,并采用墙面上的壁龛辅助收纳,给人以极大的放松与舒适。

次 卫

次卫延续了黑白灰色调,与整个家的风格形成了巧妙呼应;镜子上方又搭配金属壁灯,让这个简洁的空间更显精致。

深浅防水漆的色彩对比,让单调的空间层次得到丰富;马桶上方还放置了一张黑白色的艺术画,原来厕所也可以变得如此高雅~~

设计,就是将生活融入其中。

只有真正符合业主习惯及需求的设计,才是最实用、最有价值的设计。

伟博装饰

精心为您打造一个舒适的家

张 家 港 伟 博 装 饰[市 区 店]

市区公司地址是:港城大道118-121号

市区公司联系电话:0512-5537-1618

张 家 港 伟 博 装 饰[港 区 店]

港区分公司地址是:金厦路37-38号

(阳光绿城对面)

港区公司联系电话:0512-58601606

微信名:张家港伟博装饰

微信ID:zjg-weibo

❶点击右上角按钮···

分享至朋友圈

❷复制网址在浏览器打开

www.zjgwbzs.com

❸长按识别二维码加关注

后台回复“装修”

获取更多装修福利!

↙点击“张家港伟博装饰”前三名为你免费设计出效果图

 

什么,装修还用自己的钱?!齐家装修分期,超低年利率3.55%起,最高可贷100万。立即申请享受优惠

已有0条评论

根据该面积估算半包报价为 :

65610.1

因选择的材料品牌、施工工艺及实际工程量的不同,报价会有差异,具体报价还以装修公司上门实地量房后计算的报价为准,立即精准报价

报名获取更多优惠

活动亮点

免费热线:400-660-7700

我已阅读并且同意齐家网的 用户协议

立即报名

您好,90天内您装修开工的最佳吉日是:

2015年11月14日 星期六 十月 初三

【乙未年 丁亥月 甲午日 】

若当天您无法开工,2015年11月20日 星期五 十月初九【乙未年 丁亥月 庚子日】也是您装修开工的吉日。

结果已同步发送到您手机,齐家网,帮助用户轻松实现装修,感谢您的使用。

星座匹配装修风格:

白羊座 更适合于“现代简约” 装修风格

喜欢出风头的羊儿不太希望自己的家居风格与他人一致。后现代风格强调建筑及室内装潢应具有历史的延续性,但又不拘泥于传统的逻辑思维方式,使得整个家居环境时髦又不失品味。白羊比较喜欢在家中接待友人,这种装修风格能让白羊在接待友人时面子十足。

可参考如下更多“现代简约”风格装修案例图 更多

恭喜您,报名成功!