齐家网 > 资讯 > 装修头条 > 装修达人 > 正文

59㎡小户型变身法式轻奢公寓,还能摆下一架三角钢琴|推荐0

2019-04-10 04:30:17

本文转载自住艺    ID:zhuyi_cn台湾女生为了让英国老公身在异乡如家乡,请来设计师陈荣声与林欣璇,将59㎡台湾老宅,改造成老公非常喜欢的法式公寓。只是将格局重新梳理,体验上足足大出十来平,甚至还放得下一架三角形钢琴!前后反差太惊艳!其实设计师用的那些小技巧都不难,我们完全可以照搬回家!1

本文转载自住艺 ID:zhuyi_cn

台湾女生为了让英国老公身在异乡如家乡,

请来设计师陈荣声与林欣璇,

将59㎡台湾老宅,

改造成老公非常喜欢的法式公寓。

只是将格局重新梳理,

体验上足足大出十来平,

甚至还放得下一架三角形钢琴!

前后反差太惊艳!

其实设计师用的那些小技巧都不难,

我们完全可以照搬回家!

1 格局改造让老房子脱胎换骨

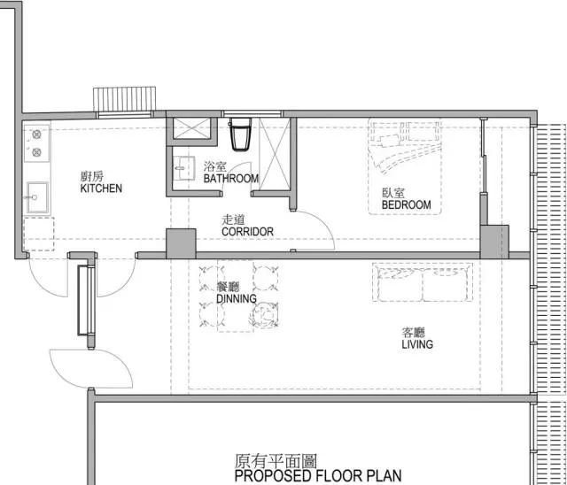
原有格局里,一进门就是餐厅与客厅,虽然说小户型越开敞越好,但空间分配不均导致餐厅与客厅都没有最大化的合理利用,卫生间却小得可怜。

餐厅与厨房距离远,用起来不方便;更不方便的是上厕所与睡觉都要经过厨房,生活动线这么长,体验感怎么会好?而且面积本来就不大,走道还没法儿利用起来,足足浪费3、4平。

重新布局后,进门处做了个玄关,让空间层次丰富不说,还营造出回家的仪式感;厨卫空间与卧室分别开门,上厕所与睡觉再也不用绕道,大大缩短了生活动线。

在厨房与卫生间之间新建一堵S型隔墙,方便两边的使用,特别是将冰箱嵌入S凹槽后,剩下的空间就能将厨房与餐厅整合起来,客厅更显开阔,还能放下一架大钢琴,堪称一点小改变,带来生活大方便的典范啊!

将原有的走道并入卫生间,卫生间瞬间大两倍;拆掉卧室原有隔墙改用柜体代替,收纳空间也多出不少;把卧室和阳台合二为一,住起来更大更舒适!

所以说户型真的太重要,稍微变一下,小户型也能脱胎换骨成法式公寓,显大又显好。

2 令人赞叹的Before& After

在进门处用双面柜体打造一个玄关,营造出法式门廊的感觉。

一进门就有了仪式感,空间层次也更丰富。

镂空的双面柜体不但没让空间显小,反而让家里多了更多储物与展示空间;玄关里像油画又像瓷砖的东西实际上是法国进口的壁纸,加强了家里的仪式感与艺术氛围。

拿掉原有的柜子,再通过S型凹凸墙处理嵌入冰箱,厨房立马变宽敞。

厨房与餐厅合二为一,在家招待几个朋友吃饭完全不成问题。

封掉厨房里的另一扇入户门,将一字形台面延长到底,操作的空间变大,下厨做饭再也不会局促。

沿着窗户做一排台面,增加厨房收纳空间,还有展示作用。

用一整排柜体换掉原有的隔墙,储物空间大大增加;少了餐桌后的客厅甚至放得下一架大钢琴!卫生间与卧室分别开出两扇门,再也不用像以前那样绕道而行了。

对比看看一目了然,储物空间成倍增加。

原本的卫生间又小有难用,将走道空间并入卫生间后,不但可以干湿分区,原有的盥洗台大了几倍,S型凹凸墙还能放下一台洗衣机,现在的卫生间真的太好用了!

毕竟现代人对于卫生间的要求早就不是单纯的洗浴和如厕,享受卫生间的时光也非常值得推崇的生活方式。

原本卧室需要从厨房绕进来,改变进门方向后,封掉原有门洞打造一整排大衣柜,增加储物空间。

人在床上的视线可以直达客厅,感受上会更觉宽敞。

将原有的小阳台扩宽并入卧室,让卧室更大,还能辟处一块阅读角和工作台,绝对是麻雀虽小五脏具全啊!

看完这个Before& After,是不是觉得设计师太牛X,通过简单的格局划分就能化腐朽为神奇。其实看似简单的分割背后是设计师多年的实操经验累积与设计审美沉淀后的结果,绝不是你想的那么容易啦~

不过住艺这么好,当然也能为你总结一些小妙招,如果你也希望把小户型变大,下面就要划重点了——

//小空间显大秘笈//

扩宽、拉长门洞

# 这对比真心明显到不用解释了,扩宽、拉长后的门洞让同样的空间有了更大的视觉体现,而且隔墙没了,采光更足,不显大才怪呢。

小户型更要白白净净

# 和白衣显胖黑衣显瘦一个理儿,而且小户型的家里更要做到整洁干净,一乱就更显小。

拆掉隔墙做柜体

# 能拆打洞的情况下用柜体代替所有隔墙,有多方便一试便知!

占用一切能用的空间

# 将原本特别鸡肋的走道并入卫生间,面积大了一倍,用起来的舒适度大了十倍都不止呢。

以上4个要择其一就能让空间大不少,要是4个都搬进家里,那还得了,简直就是小户型华丽变身豪宅,轻轻松松省了几十万啊!

啊对了,光豪还不行,融入些法式风情,品味立马上来了,具体怎么打造,下面8个小技巧,又该划重点了——

//轻奢法风轻松来//

# 仪式感玄关,最好还有一副(至少看上去像)艺术品;

# 地板鱼骨拼,比人字拼更隆重哦;

# 一张经典款绒面沙发,带你回到中世纪;

# 一面巴洛克风格挂镜,卫生间立马提气;

# 尽可能扩大门洞,能用两扇门绝不用一扇!

# 红酒配电影,吊灯配钢琴;

# 法式地面要勾边~

# 最后一点——对称对称再对称!

研儿妹说

房子也许是租来的,

但是生活是自己的。

如果你也是居住达人,

欢迎跟我们分享你的作品。

被选中的研友,将有机会把美家拍摄成视频

预知更多活动和福利,

可添加研妹微信:iwoooyan

欢迎来撩~

看完这篇文章后你感觉昏昏欲睡,

身子越来越轻,

逐渐脱离了大脑的控制,

拇指不听使唤,

做了今年最神奇的两件事情:

看在这么牛逼的二维码份儿上,关注下

点击屋研,查看更多内容

 

什么,装修还用自己的钱?!齐家装修分期,超低年利率3.55%起,最高可贷100万。立即申请享受优惠

已有0条评论

根据该面积估算半包报价为 :

65610.1

因选择的材料品牌、施工工艺及实际工程量的不同,报价会有差异,具体报价还以装修公司上门实地量房后计算的报价为准,立即精准报价

报名获取更多优惠

活动亮点

免费热线:400-660-7700

我已阅读并且同意齐家网的 用户协议

立即报名

您好,90天内您装修开工的最佳吉日是:

2015年11月14日 星期六 十月 初三

【乙未年 丁亥月 甲午日 】

若当天您无法开工,2015年11月20日 星期五 十月初九【乙未年 丁亥月 庚子日】也是您装修开工的吉日。

结果已同步发送到您手机,齐家网,帮助用户轻松实现装修,感谢您的使用。

星座匹配装修风格:

白羊座 更适合于“现代简约” 装修风格

喜欢出风头的羊儿不太希望自己的家居风格与他人一致。后现代风格强调建筑及室内装潢应具有历史的延续性,但又不拘泥于传统的逻辑思维方式,使得整个家居环境时髦又不失品味。白羊比较喜欢在家中接待友人,这种装修风格能让白羊在接待友人时面子十足。

可参考如下更多“现代简约”风格装修案例图 更多

恭喜您,报名成功!