齐家网 > 资讯 > 装修头条 > 装修达人 > 正文

两室两厅一厨一卫混搭风,超有爱的小家庭0

2019-04-11 00:20:09

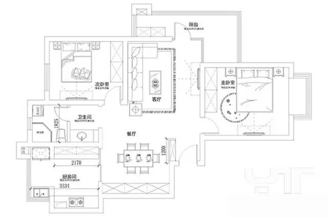
房子的平面图,还是挺大的,要是三室就更完美了!建筑面积:120㎡室内面积:90㎡户  型:2房2厅1橱1卫风  格:混搭(现代、田园、乡村、欧式)质朴田园总体图,设计师把家居摆设的很到位,色调也很搭配非常协调,朋友都很赞。客厅饭厅全景图,整体感觉超不错,满满是回到家的美妙感觉。电视机上的小饰品的加

房子的平面图,还是挺大的,要是三室就更完美了!

建筑面积:120㎡

室内面积:90㎡

户  型:2房2厅1橱1卫

风  格:混搭(现代、田园、乡村、欧式)

质朴田园总体图,设计师把家居摆设的很到位,色调也很搭配非常协调,朋友都很赞。

客厅饭厅全景图,整体感觉超不错,满满是回到家的美妙感觉。

电视机上的小饰品的加入,让整体看起来更加完美。红色印花台布加上装饰盘,桌子显得如同少女佩戴花饰一样漂亮。这一块地方,是我和lg大爱之处。

钢琴上披着米色勾花布,静静靠在红墙上,文艺加乡村风,若是弹奏一曲《风之甬道》,这田园式就活了。

兴起于10世纪的彩色玻璃,为田园风添上功不可没的一笔。

小鸟花盘,放这些干花,一是使房间充满田园花香,二是田园摆设的小物件,增加田园意境。

饭厅的侧景,厨房门框上的铁艺虽然不是很容易发现,但它的出现使得整体格局又显美感。餐桌上的百合花在泥陶罐子里静静的开着,深深地享受周围为她衬托的一切。

灯下的瓷罐,诗情画意,放些糖果,在闲时也可品尝这一切甜蜜。

田园花钟,路边摊上淘来的,美吧

主卧侧景,床头的吊灯个性十足却不失田园味。

主卧阳台。软软的靠垫,在某个下雨天或是黄昏时刻,端着杯咖啡,捧着一本书,静静斜靠,这种方式大概是再合适不过的了。

主卧左侧景

个性儿童床。把属于外面的太空舱搬回家,满足了儿子飞天的梦,为宝贝增添不一样的感觉,一改以往单调生活方式。

厨房与盥洗台,每天早上醒来,都觉得好清新。

浴室里的这种感觉,让我想起迪士尼动画《灰姑娘》中“仙度瑞拉”在梳洗时的场景,几只小鸟玩闹着。整个浴室干净明亮,主人洗浴一定会神清气爽。

圆镜上的两个壁灯,像是古堡里墙壁的壁灯;房间算是看完了,美吧?感谢设计师把我家装的这么漂亮!

限时申请免费设计(4套方案) 量房+报价+效果图

免费设计名额申请,请点击“全球创意家居馆”

 

什么,装修还用自己的钱?!齐家装修分期,超低年利率3.55%起,最高可贷100万。立即申请享受优惠

已有0条评论

根据该面积估算半包报价为 :

65610.1

因选择的材料品牌、施工工艺及实际工程量的不同,报价会有差异,具体报价还以装修公司上门实地量房后计算的报价为准,立即精准报价

报名获取更多优惠

活动亮点

免费热线:400-660-7700

我已阅读并且同意齐家网的 用户协议

立即报名

您好,90天内您装修开工的最佳吉日是:

2015年11月14日 星期六 十月 初三

【乙未年 丁亥月 甲午日 】

若当天您无法开工,2015年11月20日 星期五 十月初九【乙未年 丁亥月 庚子日】也是您装修开工的吉日。

结果已同步发送到您手机,齐家网,帮助用户轻松实现装修,感谢您的使用。

星座匹配装修风格:

白羊座 更适合于“现代简约” 装修风格

喜欢出风头的羊儿不太希望自己的家居风格与他人一致。后现代风格强调建筑及室内装潢应具有历史的延续性,但又不拘泥于传统的逻辑思维方式,使得整个家居环境时髦又不失品味。白羊比较喜欢在家中接待友人,这种装修风格能让白羊在接待友人时面子十足。

可参考如下更多“现代简约”风格装修案例图 更多

恭喜您,报名成功!

沪ICP备13002314号-1 沪B2-20170342 组织机构代码证:66439109—1

中国互联网协会信用评价中心网信认证 网信编码:1664391091 举报电话:400-660-7700

齐家网 版权所有Copyright © 2005- www.jia.com All rights reserved