嘿姐之前告诉大家为什么家里的椅子容易“长衣服”那是因为你没有给“隔夜衣”找到合适的收纳区戳这里可以回看哦很多宝宝委屈的说我家里空间实在太小了所以才没地方放东西在嘿姐看来,99%人都忽略了家里一个最重要的空间那就是——玄——关——玄关利用得好分分钟多出一个房间呢本文授权转载自在家ZAIJIA(ID:

嘿姐之前告诉大家为什么家里的椅子容易“长衣服”
那是因为你没有给“隔夜衣”找到合适的收纳区
戳这里可以回看哦
很多宝宝委屈的说我家里空间实在太小了
所以才没地方放东西
在嘿姐看来,99%人都忽略了家里一个最重要的空间
那就是——玄——关——
玄关利用得好
分分钟多出一个房间呢

本文授权转载自在家ZAIJIA(ID:trendszaijia)
关于玄关的布置
对于大多数中国家庭来说
能满足鞋子收纳和钥匙外套随手挂
这两点实用功能往往才是一个玄关的合格标配

但对于70㎡以下的户型来说,卧室的面积通常也不大,没有衣帽间、大衣柜往往也放不下,收纳问题永远是小户型的烦恼。如果能将入户玄关利用好,反而会缓解衣物收纳的困扰。

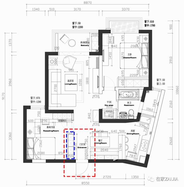
在布置前,不妨先认识一下你家的玄关是属于哪种类型。(下图红色虚线区域为玄关区,蓝色虚线区域为衣柜区。)
走廊型
入户门正对走廊,这种走廊式玄关较节约空间,小户型常见。
正对型
大门正对墙面,鞋柜在右侧,入户门对面的墙壁可用装饰画装饰。
无玄关型
入户就是客厅,没有玄关,也是小户型中较常见的情况。
对于很多进门就是客厅的户型来说,在客厅做一整面内嵌式收纳柜真的再合适不过了。收纳柜靠近入户的区域可留出部分做玄关收纳柜,剩下的部分既能做电视背景墙,也可做客厅区域的杂物收纳。

整墙收纳柜同样也适用于有狭窄玄关走廊的户型,内嵌式衣柜非但不会占用走廊的多余空间,反而还会多出一倍的储物空间。

下方多做一排储物柜,还能做换鞋凳使用,一家三口出门排排坐,同时换鞋再也不用排队等。

入户正对一面墙,刚刚好。内嵌式衣柜的并不一定非要大,也可根据被收纳物品的数量和大小而定。

将卧室衣柜设置在玄关,选择L型组合柜更实用,左侧有可以挂长外套的区域,下方也有储放小件衣物的区域,右侧的台面可做钥匙等杂物的收纳区域。

将矮柜改成能储物的卡座,既能做出入换鞋的穿鞋凳,也能为日常杂物收纳留有空间。

对于小开间户型,也可以试试在入户门周围做文章,倒立的L型储物架,刚好形成了鞋柜、挂衣区和上方杂物储存区三个区域。但对于这样的开放式的收纳架,东西一多就显乱,建议可以尽量选择同色系的物品再此收纳。

怕开放式衣柜会显乱?那就做衣柜统统藏起来。将小格杂物区一只上方,右侧的空缺还能放下一个开放式的小鞋架,用来放些当季穿的鞋子刚刚好。

家里的玄关真的太太太窄啦!那就试试宜家的斯多尔四门鞋柜吧!窄窄的不占地儿,下方离地也能方便日常打扫。每格可以放两双,一家四口放两排就足够了。

根据自家玄关的尺寸定制也未尝不可,鞋柜的上方还有可放置钥匙等杂物的收纳台面。

玄关的鞋柜不建议做开放式设计,鞋子这个东西不管怎么摆都会显乱,而且还会有味道。

玄关靠窗,别提有多棒。做一排能储物的小飘窗,换鞋凳+鞋柜+杂物柜就全部都有了,包包和外套可以在进门后随手挂在对面的挂钩上。

C型组合柜与L型衣柜类似,只不过在上(下)方多了一排收纳区,储物空间变更大,中间还多了一个卡座和挂包区。

在中间的卡座区域,装一排暗灯,还能为狭小的玄关区域补采光。

或者放一整面穿衣镜,换好鞋子就能美美的出门。

用宜家的斯多尔四门鞋柜+穿衣镜+墙面隔板也能布置出C型的格局,挂衣区可用衣帽挂设置在对面的墙面区域。

实在放不下收纳柜,利用凹进去的墙体也可以布置出这样一个收纳区。

两个墙面隔板组成的开放式衣物收纳区,中间的挂杆还能挂下一家三口的大衣外套,为卧室的小衣柜减压不少。

空间稍大一点的,也可在下方定制一个小矮柜收纳鞋子,直接坐在柜子上换鞋也更方便,平时也可摆放些装饰物,作为玄关区的点缀。

将储物柜设置在上方,在下方的卡座上铺个柔软的毛毯,这里还能挤出一个临窗的阅读休闲角。

入户既是楼梯的户型,改造一下刚好变成一个内嵌式mini衣帽间。

壁挂式组合柜,一边收鞋子一边挂外套,下方离地的区域也能方便日常打扫。

怕放置衣柜后玄关变得不再清爽,不妨试试做一整墙的衣帽挂。木质衣帽挂不仅能挂衣,还能有装饰墙面的效果。
玄关的面积虽小
但却是使用频率极高的重要场所
更是居室中非常重要的储物空间
看了今天这些你有没有心动呢?
嘿姐的话
上期中奖的三位读者,还有一位没有联系我哦,请宝儿同学把你的联系地址和电话给我哟,不然奖品就会留到这周五继续给大家用来抽奖了~

我的读者里有不少宝妈,跟大家分享最近的一个案例,宝妈们最头疼的玩具收纳。
你家的小魔王来过之后是不是都像左边一样狼藉?

把玩具按照种类来区分,让小魔王和你一起做收纳。
不过这个案例也有一些不完美的地方,比如上层的架子空间还没用足,如果能再支一个横版就更好了,另外收纳盒上能够贴上标签方便小朋友辨识。


感谢阅读周五还要送礼物的嘿姐趣生活
想看我的更多案例可以打开菜单找到嘿姐精选-学收纳
喜欢我的话,请为我转发让跟多的人知道哦
比心
?
※嘿姐:日本专门家协会一级整理师、讲师。爱逛家居店的强迫症,生活美学家,家居收纳达人。
关注我 从今天开始 我们交个朋友吧
—— END ——
文字/在家、嘿姐
图片/网络
什么,装修还用自己的钱?!齐家装修分期,超低年利率3.55%起,最高可贷100万。立即申请享受优惠
2015年11月14日 星期六 十月 初三
【乙未年 丁亥月 甲午日 】
结果已同步发送到您手机,齐家网,帮助用户轻松实现装修,感谢您的使用。
白羊座 更适合于“现代简约” 装修风格
可参考如下更多“现代简约”风格装修案例图 更多
沪ICP备13002314号-1 沪B2-20170342 组织机构代码证:66439109—1
中国互联网协会信用评价中心网信认证 网信编码:1664391091 举报电话:400-660-7700
齐家网 版权所有Copyright © 2005- www.jia.com All rights reserved