齐家网 > 资讯 > 装修头条 > 装修达人 > 正文

33㎡的小LOFT装出大格调【风格013期】0

2019-04-11 02:50:14

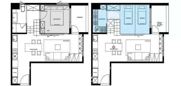
跟大家分享一个小loft风格设计这个住宅项目位于台湾面积大约 33㎡,层高 4.2m设计师利用层高优势制造了一个交错的空间不仅能增加使用面积也能多些与家人之间的互动设计理念▲平面图▲施工图▲根据格局设计师将厨房放在与玄关并排的位置厨房边上是餐厅没有做很明确的区域划分只在木餐桌的顶部用一盏吊灯照明客

跟大家分享一个小loft风格设计

这个住宅项目位于台湾

面积大约33㎡,层高4.2m

设计师利用层高优势

制造了一个交错的空间

不仅能增加使用面积

也能多些与家人之间的互动

设计理念▲

平面图▲

施工图▲

根据格局设计师将厨房放在

与玄关并排的位置

厨房边上是餐厅

没有做很明确的区域划分

只在木餐桌的顶部

用一盏吊灯照明

客厅呈条形

一直延伸到尽头的落地窗前

灰色的背景墙

营造出视觉拉伸的效果

上边留白又多了层次感

沙发靠墙摆放

只搭配小型子母茶几和毛地毯

留出更多的走动空间

让客厅看起来较为宽敞

白色电视柜两边使用隔栅造型

起到一个散热作用

生活空间的软件搭配上

选择了比较跳跃性的颜色

黄色沙发与深色抱枕

红铜色吊灯搭配蓝绿色椅子

带动出较为活泼氛围

因为原有层高差的关系

设计师将通往上下的楼梯

整合在一起

往下为木制阶梯

可方便家人坐在这儿看书 闲聊

通往隔层的楼梯

使用铁板做台阶钢索做扶手

在顶部隔层的地板玻璃地面

缓解小平米带给人的压迫感

也能增加互动的乐趣

再通过光线的穿透

让上下空间变得很有层次性

隔层作为儿童房使用

除了地板为玻璃材质外

还选用玻璃墙和黑色框架的玻璃门

做一个玻璃盒子的概念设计

隔层上还有一个独立的更衣室

既能存放孩子们的衣物

又为整体空间做了一个留白

完全不浪费一点空间

主卧室在下层

因为面积不大

在与客厅的隔墙处留一条缝隙

营造出空间穿透感

并且将电视柜与主卧室的衣柜相连

利用底部壁龛做成一个整体

大量玻璃窗

缓解了室内的压抑气氛

也增强了通透性

使用百叶做窗帘

又营造出俐落的线条感

与卧室相对的是卫生间

选用雾面玻璃推拉门

增加了采光的同时

还保证了私密性

文章来源:一起设计仪器设计

新开微信公众号:【软装学堂】

软装设计专业知识分享者

请加入专业软装设计师微信群交流

/入群联系人微信号:huixiaoliao

/入群备注:软装设计师

延伸阅读

注:本文由烩设计整理,转载请注明出处

在通讯录中,搜索multidesign,关注烩设计

充分交流,请加烩设计创建人私人微信:idesignit

点击左下角“烩设计”加入

【烩设计实名设计师社交网络】

 

什么,装修还用自己的钱?!齐家装修分期,超低年利率3.55%起,最高可贷100万。立即申请享受优惠

已有0条评论

根据该面积估算半包报价为 :

65610.1

因选择的材料品牌、施工工艺及实际工程量的不同,报价会有差异,具体报价还以装修公司上门实地量房后计算的报价为准,立即精准报价

报名获取更多优惠

活动亮点

免费热线:400-660-7700

我已阅读并且同意齐家网的 用户协议

立即报名

您好,90天内您装修开工的最佳吉日是:

2015年11月14日 星期六 十月 初三

【乙未年 丁亥月 甲午日 】

若当天您无法开工,2015年11月20日 星期五 十月初九【乙未年 丁亥月 庚子日】也是您装修开工的吉日。

结果已同步发送到您手机,齐家网,帮助用户轻松实现装修,感谢您的使用。

星座匹配装修风格:

白羊座 更适合于“现代简约” 装修风格

喜欢出风头的羊儿不太希望自己的家居风格与他人一致。后现代风格强调建筑及室内装潢应具有历史的延续性,但又不拘泥于传统的逻辑思维方式,使得整个家居环境时髦又不失品味。白羊比较喜欢在家中接待友人,这种装修风格能让白羊在接待友人时面子十足。

可参考如下更多“现代简约”风格装修案例图 更多

恭喜您,报名成功!