齐家网 > 资讯 > 装修头条 > 装修达人 > 正文

半包8万装90平简约复式,开放式厨房好看更好用!0

2019-04-11 11:50:14

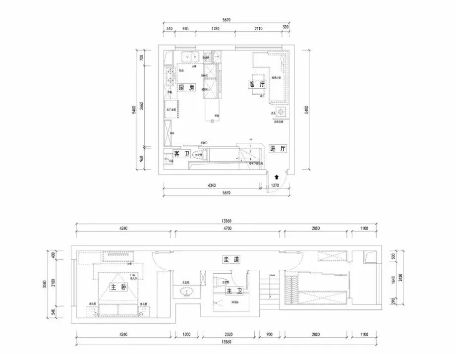
这套90平简约调休闲小复式,半包装修花了8万,加上家具家电,总造价21万。▲ 平面布置图入户安装马赛克彩绘

这套90平简约调休闲小复式,半包装修花了8万,加上家具家电,总造价21万。

▲平面布置图

入户安装马赛克彩绘玻璃墙,既是隔断,又是装饰。

玄关与客厅之间用木质栏栅屏风做分区,同时化解入户直面客厅的尴尬。

客厅窗户安装了整面的玻璃,没有装栏杆,美观性更高。

蓝绿色沙发搭配白色圆形茶几组,头一次见文化砖斑驳背景墙,个性十足。

木作半高隔断柜,兼具电视背景与橱柜机能,左侧延伸小吧台作简餐区,亮黄吧台椅提亮空间。

开放式厨房,U型橱柜创造储物机能最大化。

网红款谷仓门作卫生间门片,右侧墙面做了嵌入式收纳柜,提高了空间的储物能力。

卫生间,花砖地面搭配白色工字铺地铁砖,凸显层次;浴帘代替玻璃淋浴房,空间灵活且节省预算。

转角楼梯下方设计一组嵌入式书架,不浪费一丝一毫的室内空间。

黑面实木踏步搭配黑色扶手,栏杆下装几盏壁灯辅助照明。

二层为长条户型,长长的走廊安装了数盏筒灯用于照明。左右两侧墙面都安装了嵌入式储物柜,再也不用担心找不到地方放杂物了。

纯白墙面搭配黑色条纹床单,简约时尚。

床侧打造开放式衣柜,功能强大,分类合理,不同的衣物放在不同的位置,一目了然,再也不用为找不到衣服头疼了。

梳妆台放窗边,化妆时不用担心光线不好影响妆容效果了。

 

什么,装修还用自己的钱?!齐家装修分期,超低年利率3.55%起,最高可贷100万。立即申请享受优惠

已有0条评论

根据该面积估算半包报价为 :

65610.1

因选择的材料品牌、施工工艺及实际工程量的不同,报价会有差异,具体报价还以装修公司上门实地量房后计算的报价为准,立即精准报价

报名获取更多优惠

活动亮点

免费热线:400-660-7700

我已阅读并且同意齐家网的 用户协议

立即报名

您好,90天内您装修开工的最佳吉日是:

2015年11月14日 星期六 十月 初三

【乙未年 丁亥月 甲午日 】

若当天您无法开工,2015年11月20日 星期五 十月初九【乙未年 丁亥月 庚子日】也是您装修开工的吉日。

结果已同步发送到您手机,齐家网,帮助用户轻松实现装修,感谢您的使用。

星座匹配装修风格:

白羊座 更适合于“现代简约” 装修风格

喜欢出风头的羊儿不太希望自己的家居风格与他人一致。后现代风格强调建筑及室内装潢应具有历史的延续性,但又不拘泥于传统的逻辑思维方式,使得整个家居环境时髦又不失品味。白羊比较喜欢在家中接待友人,这种装修风格能让白羊在接待友人时面子十足。

可参考如下更多“现代简约”风格装修案例图 更多

恭喜您,报名成功!