猛戳这里,关注小编可以获得免费报价,名额有限,切莫错失良机哦!极简黑白灰打造的一居室小户型,果然很是拉风大气上档次啊!小编今天给大家带来的这个极简黑白灰打造的北欧风一居室小户型,黑色的高冷的质感,纯洁的白色简单明了,灰色的过渡带,还有各种隐形的收纳空间设计,不得不惊叹一句果真是拉风大气上档次啊!这
猛戳这里,关注小编可以获得免费报价,名额有限,切莫错失良机哦!
极简黑白灰打造的一居室小户型,果然很是拉风大气上档次啊!小编今天给大家带来的这个极简黑白灰打造的北欧风一居室小户型,黑色的高冷的质感,纯洁的白色简单明了,灰色的过渡带,还有各种隐形的收纳空间设计,不得不惊叹一句果真是拉风大气上档次啊!

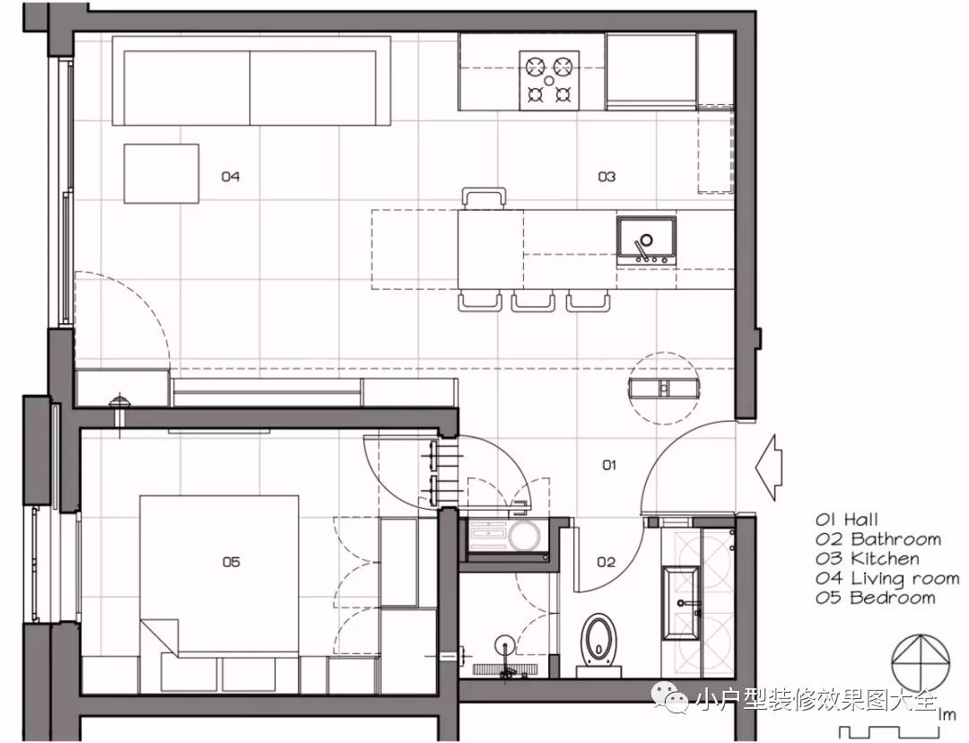
这个一居室的平面户型图。

进门的玄关就放置了一个黑色的橱柜,千万不要小看它哦!

其实这个橱柜是一个可以旋转的,后面是一面镜子,是不是很多功能呢?整面挂衣服包包,后面可以整理仪表,下方放鞋,美观实用。

玄关正对着的是一个开放式的厨房和餐厅一体化的设计,餐桌的设计还是可以伸缩的,要是平时有亲朋来家里做客,这样就不担心坐不下了吧!

玄关的橱柜和电视背景墙也是一体化的设计,电视背景墙是一面展示柜,这样的一体化设计不但能够节省空间,还增加了很多的收纳空间,并且设计上也是很美观的。

灰色的地板和沙发正好柔和过渡了这种黑白色分明的强烈的视觉效果,让装修效果效果更加的事半功倍。电视背景墙里面还有一个隐形的设计,酒柜就隐藏其中哦!

大大的落地窗,采光也是很优秀的。

卧室也是简易的黑白色,床的四周整面墙都是黑白色的收纳柜做的墙面,床头两侧的小暖光灯成为了亮点,还有床头上方的那个鹿头,个性十足。


卫生间

不知道在座的小主子们喜欢这个黑白灰极简北欧风的一居室小户型吗?小编是被它的高冷范儿深深地折服了呢!

想要了解更多的装修小知识的朋友们,记得关注小编,也可以在下方留言给小编哦!
看这里!
另外,小编每天给大家提供免费报价的名额,想要的小伙伴可一定要抓紧机会哦!
(本文图片均来源于网络,如有侵权请联系删除)
什么,装修还用自己的钱?!齐家装修分期,超低年利率3.55%起,最高可贷100万。立即申请享受优惠
2015年11月14日 星期六 十月 初三
【乙未年 丁亥月 甲午日 】
结果已同步发送到您手机,齐家网,帮助用户轻松实现装修,感谢您的使用。
白羊座 更适合于“现代简约” 装修风格
可参考如下更多“现代简约”风格装修案例图 更多