齐家网 > 资讯 > 装修头条 > 装修达人 > 正文

3种自然色彩样板间,演绎都市生活时尚美学!【色彩056期】0

2019-04-12 04:02:20

将不同的家居赋予不同的色彩和寓意是设计师对于美好生活的诠释和尊崇而自然的色彩是更具温度的时尚美学35㎡A户型公寓样板间阳光照入铺满耀眼的眀橙色的室内墙上挂画里的木棉花似乎也舞起了绽放的旋律温馨的橙赭色成为这个LOFT小户型公寓的主要搭配色二层卧室充满活力的橙色基调延续至此定制挂画的点缀给人以无限想

将不同的家居赋予不同的色彩和寓意

是设计师对于美好生活的诠释和尊崇

而自然的色彩是更具温度的时尚美学

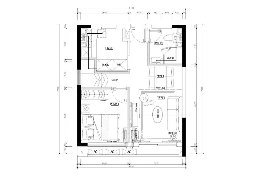
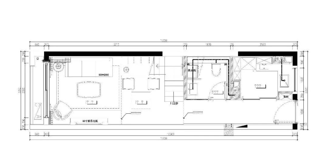
35㎡A户型公寓样板间

阳光照入铺满耀眼的眀橙色的室内

墙上挂画里的木棉花

似乎也舞起了绽放的旋律

温馨的橙赭色

成为这个LOFT小户型公寓的

主要搭配色

二层卧室

充满活力的橙色基调延续至此

定制挂画的点缀

给人以无限想象和审美体验

1F平面图

2F平面图

46㎡B户型公寓样板间

有一种气质叫端庄雅致

有一种闲适叫自在从容

有一种生活叫不可错过

洋溢着热带雨林式味道的

生活小居

自然、通畅与惬意扑面而来

圆形的吊灯、布艺座椅和钢制玻璃桌

抽象的挂画、沙发等

于简约的外在体现中

充满了复杂多变的创作组合

1F平面图

2F平面图

101㎡C户型样板间

蓝色通常可以用来隐喻绅士

也因此成为这个空间的主旋律

整个空间没有过度强调色彩的华丽

而是以其简约实用的功能体验

和精雕细琢的工艺设计

体现着与家人相处时的浪漫

和无处不在的闲适与惬意

灵活自由的设计和丰富的色彩运用

也让我们的家居生活空间

尽显多变又和谐统一

文章来源:建E室内设计网

新开微信公众号:【软装学堂】

软装色彩专业知识分享者

充分交流,请加软装色彩创建人

/私人微信:huixiaomian

/备注:软装设计师

延伸阅读

1. 原木色+黑白灰,60平米北欧风太有范了!【色彩055期】

2. 灰蓝色,打造优雅脱俗的居室!【 色彩054期】

3. 4.注:本文由烩设计整理,转载请注明出处

图文来自网络资料编辑,如有不妥,请联系删除

在通讯录中,搜索multidesign,关注烩设计

充分交流,请加烩设计创建人私人微信:idesignit

点击左下角“烩设计”加入

【烩设计实名设计师社交网络】

 

什么,装修还用自己的钱?!齐家装修分期,超低年利率3.55%起,最高可贷100万。立即申请享受优惠

已有0条评论

根据该面积估算半包报价为 :

65610.1

因选择的材料品牌、施工工艺及实际工程量的不同,报价会有差异,具体报价还以装修公司上门实地量房后计算的报价为准,立即精准报价

报名获取更多优惠

活动亮点

免费热线:400-660-7700

我已阅读并且同意齐家网的 用户协议

立即报名

您好,90天内您装修开工的最佳吉日是:

2015年11月14日 星期六 十月 初三

【乙未年 丁亥月 甲午日 】

若当天您无法开工,2015年11月20日 星期五 十月初九【乙未年 丁亥月 庚子日】也是您装修开工的吉日。

结果已同步发送到您手机,齐家网,帮助用户轻松实现装修,感谢您的使用。

星座匹配装修风格:

白羊座 更适合于“现代简约” 装修风格

喜欢出风头的羊儿不太希望自己的家居风格与他人一致。后现代风格强调建筑及室内装潢应具有历史的延续性,但又不拘泥于传统的逻辑思维方式,使得整个家居环境时髦又不失品味。白羊比较喜欢在家中接待友人,这种装修风格能让白羊在接待友人时面子十足。

可参考如下更多“现代简约”风格装修案例图 更多

恭喜您,报名成功!