齐家网 > 资讯 > 装修头条 > 装修达人 > 正文

98㎡现代简约风小户型,清新舒适,每天都有好心情!0

2019-04-12 04:50:09

今天,小编要和大家分享的是一个现代简约风格的小户型,是一个两室两厅的房子,屋主在装修房子的时候就想要简单一点但是比较沉稳的样式,现代简约最适合不过了,时尚沉稳的用色还有方便实用的格局设计,让这个两居室的小家很看上去很大气。下面装修之家网小编就和大家一起去看看吧!两室两厅的小户型平面布局图。客厅的装

今天,小编要和大家分享的是一个现代简约风格的小户型,是一个两室两厅的房子,屋主在装修房子的时候就想要简单一点但是比较沉稳的样式,现代简约最适合不过了,时尚沉稳的用色还有方便实用的格局设计,让这个两居室的小家很看上去很大气。下面装修之家网小编就和大家一起去看看吧!

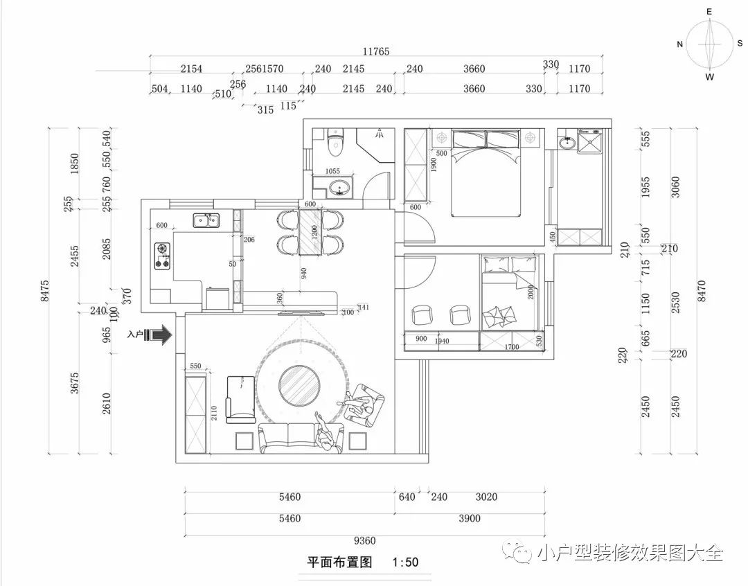
两室两厅的小户型平面布局图。

客厅的装修效果图

带有大理石纹理的灰色的地板,电视背景墙没有用整面的墙壁,而是一个灰白色大理石纹理的半墙,电视机内嵌在中间,下方还设计了壁龛,用来放一些配套的小家电。灰色和黄色的沙发,白色的圆形茶几,灰色的背景墙,墙边的到顶橱柜,正好也是玄关的鞋柜,窗前用绿植装饰着。

餐厅的装修效果图

餐厅本和客厅是一体的设计,电视背景墙的后背是一个简易的小吧台,吧台的后方就是餐桌,这样半遮挡的效果,增加了客厅的空间层次感。

厨房的装修效果图

主卧的面积并没有预留特别大的空间,一张棕褐色的皮质双人床,推拉门的衣柜,两个简答的床头柜,灰色磨砂感的背景墙上,两盏简易壁灯,让整个卧室简约很具现代感。

榻榻米书房的儿童房。

阳台是一个洗衣服和晒衣服的好地方。

卫生间的装修效果图

点击下方二维码

关注后即可计算装修报价

文末小户型装修设计

还有0元设计等你拿

这是一个有温度的公众号

有你想看的精彩

 

什么,装修还用自己的钱?!齐家装修分期,超低年利率3.55%起,最高可贷100万。立即申请享受优惠

已有0条评论

根据该面积估算半包报价为 :

65610.1

因选择的材料品牌、施工工艺及实际工程量的不同,报价会有差异,具体报价还以装修公司上门实地量房后计算的报价为准,立即精准报价

报名获取更多优惠

活动亮点

免费热线:400-660-7700

我已阅读并且同意齐家网的 用户协议

立即报名

您好,90天内您装修开工的最佳吉日是:

2015年11月14日 星期六 十月 初三

【乙未年 丁亥月 甲午日 】

若当天您无法开工,2015年11月20日 星期五 十月初九【乙未年 丁亥月 庚子日】也是您装修开工的吉日。

结果已同步发送到您手机,齐家网,帮助用户轻松实现装修,感谢您的使用。

星座匹配装修风格:

白羊座 更适合于“现代简约” 装修风格

喜欢出风头的羊儿不太希望自己的家居风格与他人一致。后现代风格强调建筑及室内装潢应具有历史的延续性,但又不拘泥于传统的逻辑思维方式,使得整个家居环境时髦又不失品味。白羊比较喜欢在家中接待友人,这种装修风格能让白羊在接待友人时面子十足。

可参考如下更多“现代简约”风格装修案例图 更多

恭喜您,报名成功!