齐家网 > 资讯 > 装修头条 > 装修达人 > 正文

30㎡ & 18㎡ 简约风公寓,小而精致【风格024期】0

2019-04-12 05:32:24

一屋两人三餐四季“人是万物的尺度——Vitruvius。”本案是一个面积为30平的挑高小公寓整个屋子就是一个长6米/宽2.9米/高4.6米的长方体空间非常的狭小原始结构一层平面布置图二层平面布置图基于对于美好日子的向往功能上安排了门厅/厨房/餐厅/客厅卧室/卫生间/多功能室/储藏间在空间的思考中打

一屋两人三餐四季

“人是万物的尺度——Vitruvius。”

本案是一个面积为30平的挑高小公寓

整个屋子就是一个

长6米/宽2.9米/高4.6米的长方体

空间非常的狭小

原始结构

一层平面布置图

二层平面布置图

基于对于美好日子的向往

功能上安排了门厅/厨房/餐厅/客厅

卧室/卫生间/多功能室/储藏间

在空间的思考中打破了

常规的平面划分的方式

我们将原来的卫生间全部敲掉

设置了一个门厅空间

一组到顶不接地的柜子对空间进行分割

保持相对隐私设置了一个灰空间

门厅进来之后便是厨房的区域

在这个空间做了一个L形的橱柜

这里放置了一台冰箱/一台蒸箱

可满足一家三口的烹饪需求

餐厅的空间/兼洗衣区

餐桌的构造是咬合了一部分门厅柜体

一头便已有了固定点

另外一头只需要添加一个支架即可

洗衣机被塞到跟楼梯同宽的柜子里

▼客厅

整个屋子的中心点就是原来飘窗的平台

原来的窗户被改造成了梦想中的落地窗

整个这个空间抬高了接近70公分

抬高之后的窗户完美的变成了落地窗

地面抬高部分做了一个超级大的储藏空间

▼卧室

二层的卧室兼书房

休息阅读可以在这个空间轻松解决

这个空间是卫浴房屋的二层

▼卫生间

改造之后的卫生间实际是非常的宽敞的

整个空间是长2.7*宽1.2米

所以选择了一个1.1米的坐缸

同时台盆做到了1.6米的长度

壁挂马桶后的吊柜隐藏了巨大热水器

空间虽小功能不缺

合理配备兼顾多种生活功能

适当取舍也能让你生活的随心所欲

“摒弃浮华 回归质朴”

场地实用面积18m²

层高4.5m

原空间格局

窗侧0.6m高的飘窗作为空调机位

0.9*0.7m的管道井紧邻侧墙

利用管道井突出厚度解决

厨房/楼梯/储物/衣柜等实用功能

0.6m的飘窗作为楼梯的中转平台

一层平面

一层以两个体块解决功能和形式的问题

进户框架量体作为空间主体

籍由岛台功能也是玄关界定

L形木台由岛台延伸至窗边转折

二层平面

二层分卧室和洗浴区

雾面玻璃区隔

引入自然光线

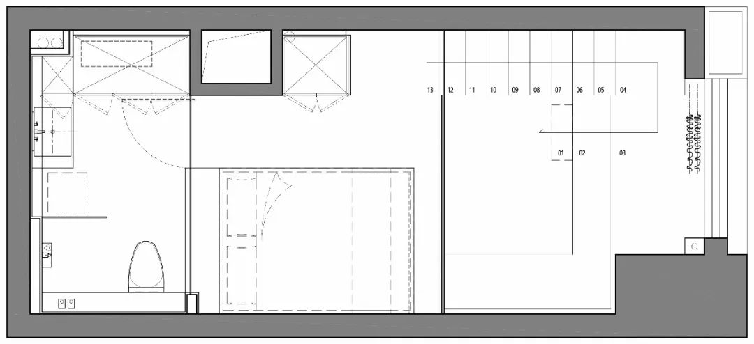
方案图纸

空间所传达的温和细腻气质

是许多人在陌生都市中

寻求“容身”之处的梦

摒弃浮华与烦躁

回归质朴与自然

拥抱生活保留自我

在既有的封闭空间的条件下

模糊空间界限取消封闭间隔

以人的活动定义功能

容纳-功能收纳之必须

容易-使用方便之必须

容质-精神气质之必须

▼卧室

卧室面积小

但是通透的开敞设计

显得空间一点都不拥挤

▼卫生间

虽然只有18平家

卫生间也还是要精致

黑白的配色和灯光的设计

都十分到位

文章来源:建E室内设计网

新开微信公众号:【软装学堂】

软装设计专业知识分享者

请加入专业软装设计师微信群交流

/入群联系人微信号:huixiaoliao

入群备注:软装设计师

延伸阅读

.

.

.

注:本文由烩设计整理,转载请注明出处

在通讯录中,搜索multidesign,关注烩设计

充分交流,请加烩设计创建人私人微信:idesignit

点击左下角“烩设计”加入

【烩设计实名设计师社交网络】

 

什么,装修还用自己的钱?!齐家装修分期,超低年利率3.55%起,最高可贷100万。立即申请享受优惠

已有0条评论

根据该面积估算半包报价为 :

65610.1

因选择的材料品牌、施工工艺及实际工程量的不同,报价会有差异,具体报价还以装修公司上门实地量房后计算的报价为准,立即精准报价

报名获取更多优惠

活动亮点

免费热线:400-660-7700

我已阅读并且同意齐家网的 用户协议

立即报名

您好,90天内您装修开工的最佳吉日是:

2015年11月14日 星期六 十月 初三

【乙未年 丁亥月 甲午日 】

若当天您无法开工,2015年11月20日 星期五 十月初九【乙未年 丁亥月 庚子日】也是您装修开工的吉日。

结果已同步发送到您手机,齐家网,帮助用户轻松实现装修,感谢您的使用。

星座匹配装修风格:

白羊座 更适合于“现代简约” 装修风格

喜欢出风头的羊儿不太希望自己的家居风格与他人一致。后现代风格强调建筑及室内装潢应具有历史的延续性,但又不拘泥于传统的逻辑思维方式,使得整个家居环境时髦又不失品味。白羊比较喜欢在家中接待友人,这种装修风格能让白羊在接待友人时面子十足。

可参考如下更多“现代简约”风格装修案例图 更多

恭喜您,报名成功!