齐家网 > 资讯 > 装修头条 > 装修达人 > 正文

73㎡ 这样的格局,1㎡ 都不会浪费【风格044期】0

2019-04-12 08:20:12

现代风设计整个风格色调选用灰白色+原木色搭配原始户型是一个三房两厅的格局经过设计师的重新布置加大了主卧面积并把原有走道空间变成了储藏室还将书房的墙面拆除设计成厨房中岛平面图轴测图客厅使用水泥墙面铁件+木材的电视柜让整体看上去简洁又大气暖色调的沙发与灰色墙面形成对比黑色的铁艺吊灯与壁灯很好的渲染了整

现代风设计

整个风格色调选用灰白色+原木色搭配

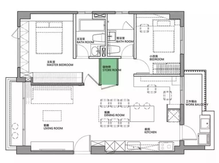
原始户型是一个三房两厅的格局

经过设计师的重新布置

加大了主卧面积

并把原有走道空间变成了储藏室

还将书房的墙面拆除

设计成厨房中岛

平面图

轴测图

客厅使用水泥墙面

铁件+木材的电视柜

让整体看上去简洁又大气

暖色调的沙发与灰色墙面形成对比

黑色的铁艺吊灯与壁灯

很好的渲染了整体氛围

在沙发旁边

隐藏着通往卧室的门和储藏室的入口

融为一体的设计很受屋主喜爱

拆除了隔墙后

书房变成了开放式设计

简单的木头书桌+铁艺书架

搭配从窗外透进来的阳光

显得格外舒适

室内也能看到窗外的绿植

在这里办公、看书很是惬意

因为整个空间的基调偏冷色系

所以设计师在厨房中使用大量白色橱柜

让整体看起来更宽阔

也富有活力

厨房与书房之间隔着岛台与餐桌

洞洞墙将侧面空间完全利用

墙后还放着冰箱

靠近书房的一边则做成了书架

虽然是开放式设计

收纳空间却很多

餐桌连接着白色的岛台

清新的色调搭配上木质餐椅

清新感十足

顶部延伸的天花板界定了区域

再利用三盏吊灯照明

温馨又浪漫

淋浴区用玻璃隔开

做干湿分离设计

墙上的小窗户用来通风换气

很是方便

窗户下方做了小的卧榻

能当座位使用

底部还有储物空间

实用性十足

文章来源:室内设计联盟

新开微信公众号:【软装学堂】

软装色彩专业知识分享者

充分交流,请加软装色彩创建人

/私人微信:huixiaomian

/备注:软装设计师

延伸阅读

1. 2.3.

4. 注:本文由烩设计整理,转载请注明出处

图文来自网络资料编辑,如有不妥,请联系删除

在通讯录中,搜索multidesign,关注烩设计

充分交流,请加烩设计创建人私人微信:idesignit

点击左下角“烩设计”加入

【烩设计实名设计师社交网络】

 

什么,装修还用自己的钱?!齐家装修分期,超低年利率3.55%起,最高可贷100万。立即申请享受优惠

相关阅读

已有0条评论

根据该面积估算半包报价为 :

65610.1

因选择的材料品牌、施工工艺及实际工程量的不同,报价会有差异,具体报价还以装修公司上门实地量房后计算的报价为准,立即精准报价

报名获取更多优惠

活动亮点

免费热线:400-660-7700

我已阅读并且同意齐家网的 用户协议

立即报名

您好,90天内您装修开工的最佳吉日是:

2015年11月14日 星期六 十月 初三

【乙未年 丁亥月 甲午日 】

若当天您无法开工,2015年11月20日 星期五 十月初九【乙未年 丁亥月 庚子日】也是您装修开工的吉日。

结果已同步发送到您手机,齐家网,帮助用户轻松实现装修,感谢您的使用。

星座匹配装修风格:

白羊座 更适合于“现代简约” 装修风格

喜欢出风头的羊儿不太希望自己的家居风格与他人一致。后现代风格强调建筑及室内装潢应具有历史的延续性,但又不拘泥于传统的逻辑思维方式,使得整个家居环境时髦又不失品味。白羊比较喜欢在家中接待友人,这种装修风格能让白羊在接待友人时面子十足。

可参考如下更多“现代简约”风格装修案例图 更多

恭喜您,报名成功!