齐家网 > 资讯 > 装修头条 > 装修达人 > 正文

60平loft小户型单身公寓,这个漂泊小哥哥的家可真帅!0

2019-04-13 03:30:07

关注微信公众号:jiaxhx01,家装案例每天更新!福利——添加个人微信:qijiavr 即可免费领取3D全景家装效果图!长按上图中的二维码识别即可添加!点击此处小程序,了解更多装修资讯在大城市漂泊的年轻人,尤其是单身青年,由于资金等各方面的原因而选择购买LOFT,虽然面积比较小,但一个人住也是足

关注微信公众号:jiaxhx01,家装案例每天更新!

福利——添加个人微信:qijiavr 即可免费领取3D全景家装效果图!长按上图中的二维码识别即可添加!

在大城市漂泊的年轻人,尤其是单身青年,由于资金等各方面的原因而选择购买LOFT,虽然面积比较小,但一个人住也是足够了。小A就是这样的年轻人,他买了套60m²的小屋,与设计师一起完成了loft风格的装修。

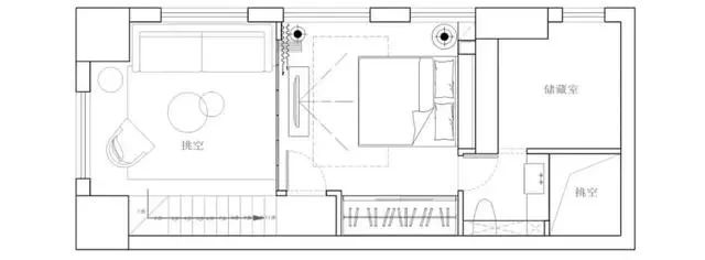
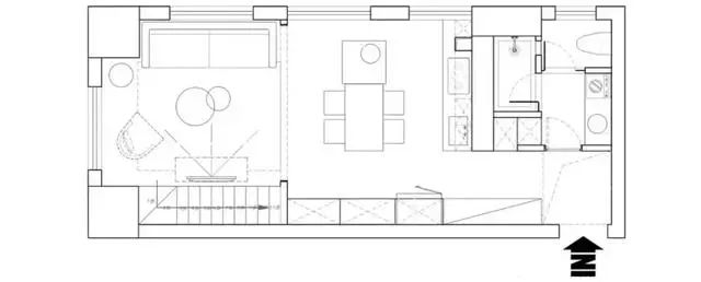
户型图

房子高4.26米,所以分作了上下两层。

一层的空间做了卫生间、厨房、餐厅和客厅。

二楼则做了全开放式的卧室,也做了卫生间。

玄关

玄关做了挑空,进门即是满眼绿,整个空间清新,自然。左手边做了半墙鞋柜,上方可以随手放包包钥匙,也可以摆放各种装饰品。

厨房+餐厅

玄关左转后的第一个空间,就是厨房+餐厅啦,因为小A不爱做饭,所以做成开放式厨房,整个空间显得宽阔不少。

纯白色的橱柜、台面和吊柜之间,是黑色的墙面,白+黑的经典搭配,实用中易于清理。一张实木餐桌+一个吧台拼合,特别适合年轻人的品味。

玄关柜延伸过来的一整个墙面做成了储物柜,冰箱也收纳在墙面,大大的增加了储物的容量并且提高了空间使用率。

客厅

客厅基本保留了4米的挑高,顶面只做了简单的黑色线条勾勒。天花板上是一盏造型独特的蜘蛛网吊灯,是小白特意网购来放在客厅的。显眼的红色沙发在这黑白灰的空间里更显鲜活。

客厅所在的位置,是全屋最好的一块区域,两片巨幅大窗使得整个空间的采光和视野极佳。

楼梯

一层通往二层的楼梯边,用了铁丝吊筋细腻的线条+整齐的排布,不止美观还安全。

楼梯下的区域面积较大,不好好利用起来也实在是浪费,于是做成了用于收纳的储物柜,用来收纳杂物和生活用品很是方便,位置还非常隐蔽,不会占用空间。

卧室

二层一整层做了全开放式的卧室,整个空间特别宽阔。整个卧室采用白+黑+灰的色调,灰色的柔软大床搭配黑色的背景,再结合床头上的壁灯,简单又时尚。

卫生间

一层入户门对面的卫生间,虽然面积不算大但仍做了分离式,整个卫生间和酒店的风格很像。

二层的卫生间,只放了一个台盆和一个马桶,简简单单。

·END·

(我们致力于保护作者版权,部分作品来自互联网.无法核实真实出处,如涉及侵权,请直接联系小编删除.谢谢!)

365天无休,全网搜罗,装修美图、案例、知识每天更新!加微信:qijiavr,或扫描下方二维码,一起聊装修!

你家装修需要花多少钱?点击“小户型装修设计精选”马上就能算出来

 

什么,装修还用自己的钱?!齐家装修分期,超低年利率3.55%起,最高可贷100万。立即申请享受优惠

已有0条评论

根据该面积估算半包报价为 :

65610.1

因选择的材料品牌、施工工艺及实际工程量的不同,报价会有差异,具体报价还以装修公司上门实地量房后计算的报价为准,立即精准报价

报名获取更多优惠

活动亮点

免费热线:400-660-7700

我已阅读并且同意齐家网的 用户协议

立即报名

您好,90天内您装修开工的最佳吉日是:

2015年11月14日 星期六 十月 初三

【乙未年 丁亥月 甲午日 】

若当天您无法开工,2015年11月20日 星期五 十月初九【乙未年 丁亥月 庚子日】也是您装修开工的吉日。

结果已同步发送到您手机,齐家网,帮助用户轻松实现装修,感谢您的使用。

星座匹配装修风格:

白羊座 更适合于“现代简约” 装修风格

喜欢出风头的羊儿不太希望自己的家居风格与他人一致。后现代风格强调建筑及室内装潢应具有历史的延续性,但又不拘泥于传统的逻辑思维方式,使得整个家居环境时髦又不失品味。白羊比较喜欢在家中接待友人,这种装修风格能让白羊在接待友人时面子十足。

可参考如下更多“现代简约”风格装修案例图 更多

恭喜您,报名成功!