齐家网 > 资讯 > 装修头条 > 装修达人 > 正文

他们生了一男一女,却只有一个儿童房!这样设计真是厉害了!0

2019-04-13 08:26:11

关注微信公众号:jia-sn,装修美图、案例、知识每天更新!点击了解更多装修知识和案例!福利——添加专家微信:qijiavc即可免费领取3D全景家装效果图!长按上图中的二维码识别即可添加!这套房子是个二房格局,这户人家的主人因为生了一个二胎愁了起来,因为两个宝宝的性别不同,意味着他们家即将要打破只

关注微信公众号:jia-sn,装修美图、案例、知识每天更新!

福利——添加专家微信:qijiavc即可免费领取3D全景家装效果图!长按上图中的二维码识别即可添加!

这套房子是个二房格局,这户人家的主人因为生了一个二胎愁了起来,因为两个宝宝的性别不同,意味着他们家即将要打破只有一个儿童房的格局,但在二房的格局下,如何让两个不同性别的孩子独立分离开呢?这套房子在设计方面以巧妙的结构式设计,把较大的主卧与小儿童房对调,实现了“两个儿童房”的愿望。

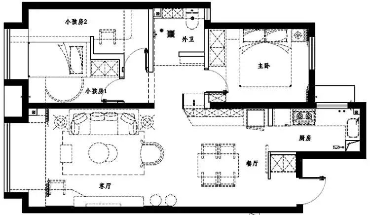
平面布置图

玄关

▲玄关一侧鞋柜一侧墙面留空装上挂钩与全身镜,创意的水滴形挂钩,为玄关带来了生动有趣的设计感。

客厅

▲客厅以浅色的空间为主,没有了美式一贯的厚重,却以现代舒适的软装,营造出闲适浪漫的惬意感。

▲电视墙是定制的收纳+展示柜,让小房子也简洁实用,客厅打通了阳台,在靠窗的窗户下方加了一个收纳飘窗,小小的空间却也设计得实用精致。

▲米白色的墙面在墙脚还安装了护墙板,墙面神挂了一幅鹿头与植物图案的装饰画,让空间显得跳跃而又活力。

▲沙发墙两侧都布置了铜制的边几,布置上台灯与落地灯,为客厅融入了优雅华丽的气质。

餐厅

▲餐厅一侧留空装上白色边框装饰,另一个则是以餐边收纳柜,在淡雅的色调空间下,搭配上暖色调的天花灯带,带来的是一个温馨雅致的空间氛围。

▲餐桌以复古调的优雅餐桌椅,餐桌上垫上餐桌布,搭配几个不同颜色的餐具+中间的一盆花饰,让餐厅充满了优雅的浪漫气质。

厨房

▲厨房墙面与地面都是以做旧质感的砖,L形的操作台,尽管紧凑却也提供了一个实用的烹饪空间。

卧室

▲卧室中色调的硬装与软质靠背床,搭配淡蓝色的床单,展现出一个淡雅的舒适睡眠休息空间。

儿童房

▲儿童房只有一个房间,却有着一个男孩一个女孩的家庭,所以采用是上下床设计,不过下铺是成品床,上铺是硬装定制的床,上床是在另一侧开门上去的,是的男孩床与女孩床在物理空间上有了分割。

▲男孩房进门后先是经过一个书桌空间,然后里侧的黑板墙后方是女孩房的床,爬上小梯子就是男孩的床铺,巧妙的空间利用,解决了一儿一女的儿童房设计难题。

卫浴

▲洗手盆外设的设计,使得卫生间的利用率得以提升,缓解了多口之家在洗漱与如厕方面的时间冲突,是小户型利用的巧妙设计手法。

(部分作品来自互联网,如涉及侵权,请直接联系小编删除,谢谢!)

加专家微信:qijiavc,或扫描下方二维码,即可根据您家户型,0元定制720度3D全景家装效果图,还未装修,亲眼看见装修后的效果!

像这样装修需要花多少钱?点击“室内装修设计精选”马上就能算出来!

 

什么,装修还用自己的钱?!齐家装修分期,超低年利率3.55%起,最高可贷100万。立即申请享受优惠

已有0条评论

根据该面积估算半包报价为 :

65610.1

因选择的材料品牌、施工工艺及实际工程量的不同,报价会有差异,具体报价还以装修公司上门实地量房后计算的报价为准,立即精准报价

报名获取更多优惠

活动亮点

免费热线:400-660-7700

我已阅读并且同意齐家网的 用户协议

立即报名

您好,90天内您装修开工的最佳吉日是:

2015年11月14日 星期六 十月 初三

【乙未年 丁亥月 甲午日 】

若当天您无法开工,2015年11月20日 星期五 十月初九【乙未年 丁亥月 庚子日】也是您装修开工的吉日。

结果已同步发送到您手机,齐家网,帮助用户轻松实现装修,感谢您的使用。

星座匹配装修风格:

白羊座 更适合于“现代简约” 装修风格

喜欢出风头的羊儿不太希望自己的家居风格与他人一致。后现代风格强调建筑及室内装潢应具有历史的延续性,但又不拘泥于传统的逻辑思维方式,使得整个家居环境时髦又不失品味。白羊比较喜欢在家中接待友人,这种装修风格能让白羊在接待友人时面子十足。

可参考如下更多“现代简约”风格装修案例图 更多

恭喜您,报名成功!