齐家网 > 资讯 > 装修头条 > 装修达人 > 正文

93平的北欧风三居室,好喜欢龙猫手绘墙!0

2019-04-13 09:34:16

关注微信公众号:jia-fszx,每天和您分享软装搭配技巧、各种风格户型的装修案例、搭配设计知识等!今天分享的是一套建筑面积93平米的北欧风三居室案例,整个房子的面积不算很大,但屋主没少在设计上下功夫,比如餐厅处的手绘龙猫背景墙和客厅处彩色木地板打造的小地台,营造出一个可爱、浪漫的文艺范小窝。平面

关注微信公众号:jia-fszx,每天和您分享软装搭配技巧、各种风格户型的装修案例、搭配设计知识等!

今天分享的是一套建筑面积93平米的北欧风三居室案例,整个房子的面积不算很大,但屋主没少在设计上下功夫,比如餐厅处的手绘龙猫背景墙和客厅处彩色木地板打造的小地台,营造出一个可爱、浪漫的文艺范小窝。

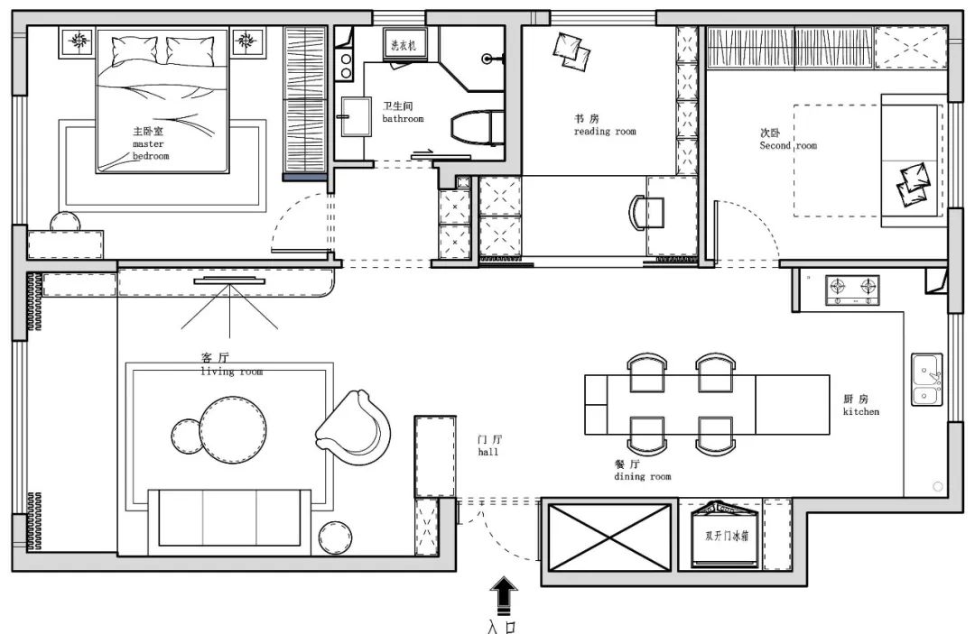
平面布置图

入户没有玄关走廊的户型,在入户门和客厅之间做了一堵矮鞋柜。另一侧就是餐厅空间,墙面选择手绘龙猫画作为装饰,显得更加可爱。

餐厅的另一侧就是厨房空间,两者之间没有装门,厨房的中岛台连着原木风的餐桌椅,冰箱被嵌入了龙猫墙边上的嵌入式餐边柜当中。

厨房的地面铺贴了六边花砖,灰色与白色、黑色的结合,搭配木色橱柜、白色墙面和吊柜,整个厨房给人一种简洁文艺的感觉。

客厅的空间不算很宽敞,所以茶几选择了迷你的款式,看起来更加宽敞。米色的布艺沙发搭配黑白色的地毯,点缀黄色的懒人沙发、单椅,更有北欧风的感觉。

客厅的边上还用彩色的木地板打造了一个休闲地台,彩色木地板一直延伸到了天花板上,书架搭配绿植、椅子,在这里看书很惬意。

主卧室给人一种温馨的感觉,墙面刷成了小麦色,床品选择了粉紫色,整体也木色的家具作为点缀,营造一个自然、温暖的睡眠空间。

书房内是做了榻榻米床组合书桌柜的设计,开放式的搁架既可以摆放书籍,又能用来摆放绿植、装饰品,结合榻榻米本身的收纳,储物空间非常多。

儿童房暂时作为一个娱乐、休闲室来使用,等孩子长大之后再来布置床,目前摆放沙发、留空大部分面积,做在地毯上靠着沙发看电视,非常舒服。

卫生间做了个L型的洗手台,还被洗衣机也嵌入其中,地面的黑白灰六边砖搭配洗手台的彩色花砖、藏光浴室镜的设计,显得很有格调感。

·END·

(图片来源于网络,如有侵权请告知我们删除!)

加微信:qijia-am,或扫描下方二维码,即可根据您家户型,0元定制720度3D全景家装效果图,还未装修,亲眼看见装修后的效果!!

像这样装修需要花多少钱?点击“家居软装设计精选”马上就能算出来

 

什么,装修还用自己的钱?!齐家装修分期,超低年利率3.55%起,最高可贷100万。立即申请享受优惠

已有0条评论

根据该面积估算半包报价为 :

65610.1

因选择的材料品牌、施工工艺及实际工程量的不同,报价会有差异,具体报价还以装修公司上门实地量房后计算的报价为准,立即精准报价

报名获取更多优惠

活动亮点

免费热线:400-660-7700

我已阅读并且同意齐家网的 用户协议

立即报名

您好,90天内您装修开工的最佳吉日是:

2015年11月14日 星期六 十月 初三

【乙未年 丁亥月 甲午日 】

若当天您无法开工,2015年11月20日 星期五 十月初九【乙未年 丁亥月 庚子日】也是您装修开工的吉日。

结果已同步发送到您手机,齐家网,帮助用户轻松实现装修,感谢您的使用。

星座匹配装修风格:

白羊座 更适合于“现代简约” 装修风格

喜欢出风头的羊儿不太希望自己的家居风格与他人一致。后现代风格强调建筑及室内装潢应具有历史的延续性,但又不拘泥于传统的逻辑思维方式,使得整个家居环境时髦又不失品味。白羊比较喜欢在家中接待友人,这种装修风格能让白羊在接待友人时面子十足。

可参考如下更多“现代简约”风格装修案例图 更多

恭喜您,报名成功!