齐家网 > 资讯 > 装修头条 > 装修达人 > 正文

10万装89平的房子,怎么能这么美!附户型图~0

2019-04-16 00:22:07

点击标题下方装修设计效果图精选(jiaxgt),关注我们,让梦想中的新房成为现实!微信又㕛叒叕改版了~更新后很多小伙伴都说找不到妙妙了,茫茫人海中,为防大家走失,请大家点击上方 “装修设计效果图精选”  → 点击右上角“...” → 点选“设为星标 ★ ”为妙妙加上星标,就再也不会迷路啦!建筑面积

点击标题下方装修设计效果图精选(jiaxgt,关注我们,让梦想中的新房成为现实!

微信又㕛叒叕改版了~

更新后很多小伙伴都说找不到妙妙了,

茫茫人海中,为防大家走失,请大家

点击上方 “装修设计效果图精选” → 点击右上角“...” → 点选“设为星标★”

为妙妙加上星标,就再也不会迷路啦!

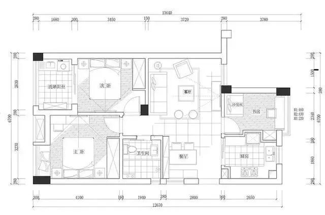
建筑面积:89平方

实用面积:69平方

户型:小三室二厅一卫

客厅

客厅

厨房暂时开放,留好了门套以后可能会加推拉门

餐厅一边是卡座增加储物空间

厨房比较小

主卧

主卧

次卧,以后的儿童房

书房没有做榻榻米

卫生间

原始结构图

平面布置图

图片源于网络,版权归原作者所有,如有侵权,请告知我们删除~

加微信:qijiaxm或扫描下方二维码,即可根据您家户型,0元定制720度3D全景家装效果图,还未装修,亲眼看见装修后的效果!!

戳左下角“装修设计效果图精选”,抢0元设计名额

 

什么,装修还用自己的钱?!齐家装修分期,超低年利率3.55%起,最高可贷100万。立即申请享受优惠

已有0条评论

根据该面积估算半包报价为 :

65610.1

因选择的材料品牌、施工工艺及实际工程量的不同,报价会有差异,具体报价还以装修公司上门实地量房后计算的报价为准,立即精准报价

报名获取更多优惠

活动亮点

免费热线:400-660-7700

我已阅读并且同意齐家网的 用户协议

立即报名

您好,90天内您装修开工的最佳吉日是:

2015年11月14日 星期六 十月 初三

【乙未年 丁亥月 甲午日 】

若当天您无法开工,2015年11月20日 星期五 十月初九【乙未年 丁亥月 庚子日】也是您装修开工的吉日。

结果已同步发送到您手机,齐家网,帮助用户轻松实现装修,感谢您的使用。

星座匹配装修风格:

白羊座 更适合于“现代简约” 装修风格

喜欢出风头的羊儿不太希望自己的家居风格与他人一致。后现代风格强调建筑及室内装潢应具有历史的延续性,但又不拘泥于传统的逻辑思维方式,使得整个家居环境时髦又不失品味。白羊比较喜欢在家中接待友人,这种装修风格能让白羊在接待友人时面子十足。

可参考如下更多“现代简约”风格装修案例图 更多

恭喜您,报名成功!