齐家网 > 资讯 > 装修头条 > 装修达人 > 正文

98㎡文艺北欧3室2厅,客厅飘窗设计休闲惬意,看了好喜欢!0

2019-04-16 02:00:23

关注微信公众号:jia-sn,装修美图、案例、知识每天更新!点击了解更多装修知识和案例!福利——添加专家微信:qijiavc即可免费领取3D全景家装效果图!长按上图中的二维码识别即可添加!面积:98㎡户型:三室一厅风格:北欧风格报价:点击“阅读原文”获取▲首先我们看到的是这个房子的整体布局。▲ 玄

关注微信公众号:jia-sn,装修美图、案例、知识每天更新!

福利——添加专家微信:qijiavc即可免费领取3D全景家装效果图!长按上图中的二维码识别即可添加!

面积:98㎡

户型:三室一厅

风格:北欧风格

报价:点击“室内装修设计精选”获取

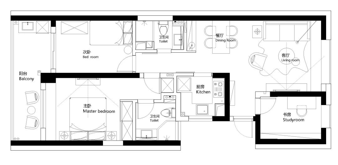
▲首先我们看到的是这个房子的整体布局。

▲玄关设计,网购了一个成品的斗柜,原木简约很有北欧的气息,绿植的装饰增加了家的温馨感。

▲温润自然的细节,使整个空间都充满了轻松舒适的感觉。

▲客厅整体简洁大方,靠窗设计了一排木质飘窗,配以木质地板,传达出温暖细腻的感受。

▲沙发墙在浅灰色的空间格调下,挂上四幅装饰画,配以浅灰色布艺沙发,以及天花上一排黑色导轨射灯,呈现出一个格调满满的氛围。

▲浅灰色布艺沙发以绿色与柠檬黄色调的抱枕进行点缀,为空间注入一份活力。

▲原木+白的茶几上摆放一个木质果盘,还有精致的玻璃瓶插花,温暖又惬意。

▲临飘窗处的墙面设计了一个壁灯,带来几分精致小资的格调感。

▲餐厅,白色吊灯清新而纯粹,木质的餐桌椅营造自然舒适的用餐氛围。

▲餐边柜上方设置搁板,摆放精心收藏的水杯也是一道清新文艺的景致。

▲精致的装饰摆件与花瓶提升品味与格调,墙面挂一面装饰圆镜,可以在视觉上让空间扩大,增加层次感。

▲U型厨房的设计,空间利用率较高,操作流程合理流畅。原木与灰调的搭配,在简单的空间里装出优雅的气质感,放松又惬意。

▲小巧的书房摆上一套木质的书桌椅,后方则是一个收纳柜,中部作开放式设计,既可以作为展示,又增强了一定的视觉层次感,让空间不那么压抑。

▲利用书桌前的墙面挂一块软木板作装饰,好看又实用。

▲静谧的色调赋予了主卧宁静的氛围,床头采用木质床背板延伸至木质地板及飘窗,借此拉长空间感。

▲衣柜采用的是玻璃推拉门,长虹玻璃透光不透影,即便不打开衣柜门也能方便地查找衣物。

▲床尾的木质斗柜上摆一幅简易装饰画,旁边还有一个木质衣帽架,呈现出文艺优雅的气质感。

▲小面积的次卧把床靠墙布置,腾出了更加宽敞的通道空间。简单舒适的床品,营造静谧安逸的睡眠氛围。

▲次卧的床尾处也布置了一个木质的衣帽架,平日经常更换的衣服可以方便地挂在这里。

▲主卫墙面铺设深灰色瓷砖,搭配钻石型的淋浴房,整个空间优雅而时尚。

▲次卫同样以灰色为基调,雅白色的洗手台质感满满,台盆下还有一层收纳层,让小小的空间也更加精致实用。

▲阳台地面铺设了防腐木与整齐的鹅卵石,还有一串灯带来营造氛围,打造休闲美观的阳台空间。

(部分作品来自互联网,如涉及侵权,请直接联系小编删除,谢谢!)

加专家微信:qijiavc,或扫描下方二维码,即可根据您家户型,0元定制720度3D全景家装效果图,还未装修,亲眼看见装修后的效果!

像这样装修需要花多少钱?点击“室内装修设计精选”马上就能算出来!

 

什么,装修还用自己的钱?!齐家装修分期,超低年利率3.55%起,最高可贷100万。立即申请享受优惠

已有0条评论

根据该面积估算半包报价为 :

65610.1

因选择的材料品牌、施工工艺及实际工程量的不同,报价会有差异,具体报价还以装修公司上门实地量房后计算的报价为准,立即精准报价

报名获取更多优惠

活动亮点

免费热线:400-660-7700

我已阅读并且同意齐家网的 用户协议

立即报名

您好,90天内您装修开工的最佳吉日是:

2015年11月14日 星期六 十月 初三

【乙未年 丁亥月 甲午日 】

若当天您无法开工,2015年11月20日 星期五 十月初九【乙未年 丁亥月 庚子日】也是您装修开工的吉日。

结果已同步发送到您手机,齐家网,帮助用户轻松实现装修,感谢您的使用。

星座匹配装修风格:

白羊座 更适合于“现代简约” 装修风格

喜欢出风头的羊儿不太希望自己的家居风格与他人一致。后现代风格强调建筑及室内装潢应具有历史的延续性,但又不拘泥于传统的逻辑思维方式,使得整个家居环境时髦又不失品味。白羊比较喜欢在家中接待友人,这种装修风格能让白羊在接待友人时面子十足。

可参考如下更多“现代简约”风格装修案例图 更多

恭喜您,报名成功!

沪ICP备13002314号-1 沪B2-20170342 组织机构代码证:66439109—1

中国互联网协会信用评价中心网信认证 网信编码:1664391091 举报电话:400-660-7700

齐家网 版权所有Copyright © 2005- www.jia.com All rights reserved