齐家网 > 资讯 > 装修头条 > 装修达人 > 正文

200㎡ 住宅获最高奖?这才是自然风【风格020期】0

2019-04-10 02:08:20

     这座占地面积为 200㎡ 的住宅位于巴西圣保罗,由巴西著名建筑师 Arthur Casas 设计,获得了第32届 CASACOR 的最高奖项。设计师打破常规的现代单层设计,创造出全新的生态环保型住宅,带来了新的生活概念。设计师Arthur Casas▲“生态系统”住宅拥有许多科技功能包括

这座占地面积为 200㎡ 的住宅位于巴西圣保罗,由巴西著名建筑师 Arthur Casas 设计,获得了第32届 CASACOR 的最高奖项。设计师打破常规的现代单层设计,创造出全新的生态环保型住宅,带来了新的生活概念。

设计师Arthur Casas

“生态系统”住宅拥有许多科技功能

包括光伏板/雨水收集利用系统

以及将有机废物转化为气体

用做厨房和壁炉的燃料等设计

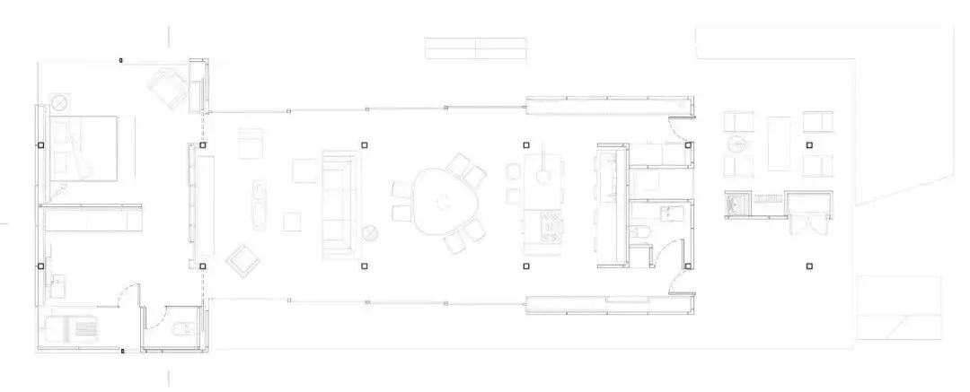
室内有客厅/餐厅/一个开放式厨房

一间卧室/两个卫生间

房子里的所有家具

和配件都是由Arthur Casas设计的

客厅在房子的中心位置

左右两边是可滑动的玻璃墙

这样通透的设计能达到最好的通风和采光效果

天花板和背景墙被橡木板包裹

顶部刻意留出的缝隙加入了灯带照明

浅色调的沙发也选用相同材质的框架

底座还有一排书架

除了方形的石制茶几外

还有一张长条的核桃木茶几

桌面有大小两个凹陷起到防滑的作用

搭配木制的单人沙发很有复古韵味

两边空出阳台位置

一家人可以坐在这里欣赏

院子里的植物/蓝天和白云

非常惬意

餐厅在沙发的后面一张三角形的黑色桌子

搭配木质的餐椅非常有设计感

开放式的厨房在生活区的尽头

运用搁板下方的灯带照明

没有做吊柜而是用挂钩和层板储物

金属色的吧台设计

可以增进家人的互动

让烹饪变得更有乐趣

卧室从客厅右边进入

顶部同样利用灯带照明

不规则的木制床头护墙板和树枝衣架

还有特意挑选的床头灯

成了室内的设计亮点

卫生间有两个入口

可以从客厅的进入也能从卧室直接进入

木制镜柜和洗漱台

搭配藤椅与篮子收纳很有自然韵味

浴缸在旁边用玻璃隔开

四周有高高的围墙和茂密的绿植

不用担心隐私问题

另一个公用卫生间在厨房后面

同样使用了原木色调

搭配藤编储物篮营造出

一种平静/优雅的感觉

室外还有两条露天躺椅

和一个开放休闲区

绿色屋顶也有助于隔热和隔音

立面图

平面图

文章来源:A963设计网

新开微信公众号:【软装学堂】

软装设计专业知识分享者

请加入专业软装设计师微信群交流

/入群联系人微信号:huixiaoliao

/入群备注:软装设计师

延伸阅读

注:本文由烩设计整理,转载请注明出处

在通讯录中,搜索multidesign,关注烩设计

充分交流,请加烩设计创建人私人微信:idesignit

点击左下角“烩设计”加入

【烩设计实名设计师社交网络】

 

什么,装修还用自己的钱?!齐家装修分期,超低年利率3.55%起,最高可贷100万。立即申请享受优惠

已有0条评论

根据该面积估算半包报价为 :

65610.1

因选择的材料品牌、施工工艺及实际工程量的不同,报价会有差异,具体报价还以装修公司上门实地量房后计算的报价为准,立即精准报价

报名获取更多优惠

活动亮点

免费热线:400-660-7700

我已阅读并且同意齐家网的 用户协议

立即报名

您好,90天内您装修开工的最佳吉日是:

2015年11月14日 星期六 十月 初三

【乙未年 丁亥月 甲午日 】

若当天您无法开工,2015年11月20日 星期五 十月初九【乙未年 丁亥月 庚子日】也是您装修开工的吉日。

结果已同步发送到您手机,齐家网,帮助用户轻松实现装修,感谢您的使用。

星座匹配装修风格:

白羊座 更适合于“现代简约” 装修风格

喜欢出风头的羊儿不太希望自己的家居风格与他人一致。后现代风格强调建筑及室内装潢应具有历史的延续性,但又不拘泥于传统的逻辑思维方式,使得整个家居环境时髦又不失品味。白羊比较喜欢在家中接待友人,这种装修风格能让白羊在接待友人时面子十足。

可参考如下更多“现代简约”风格装修案例图 更多

恭喜您,报名成功!